Wohnen wie im eigenen Haus!
-
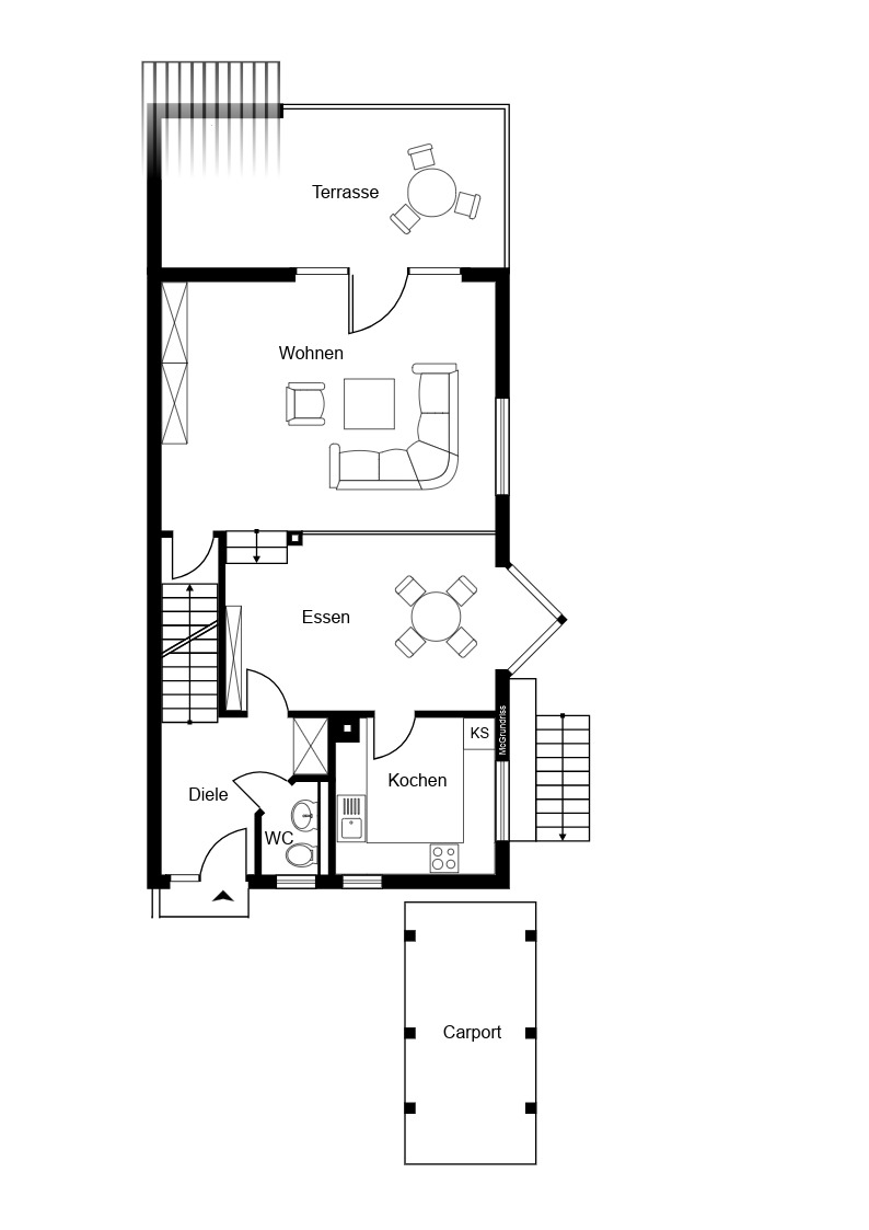
Diese Immobilie bietet eine tolle Raumaufteilung mit Wohnkomfort durch Blick ins Grüne. Schon beim Betreten des Wohnbereichs, welcher über einen großzügigen Flur erreichbar ist, wird man durch bodentiefe Fenster und die angrenzende Terrasse von diesem Blick überzeugt.
Der groß geschnittene, offene und helle Wohn- und Essbereich bietet Platz für die ganze Familie. Die angrenzende Küche der Marke Poggenpohl ist zusätzlich mit hochwertigen Elektrogeräten der Marke Neff ausgestattet.
Helle Fliesen runden das Gesamtbild im Erdgeschoss ab.
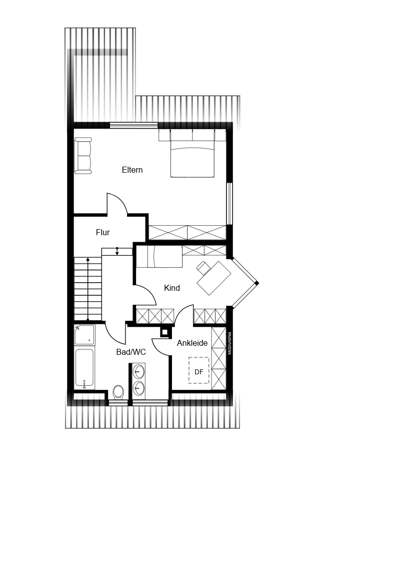
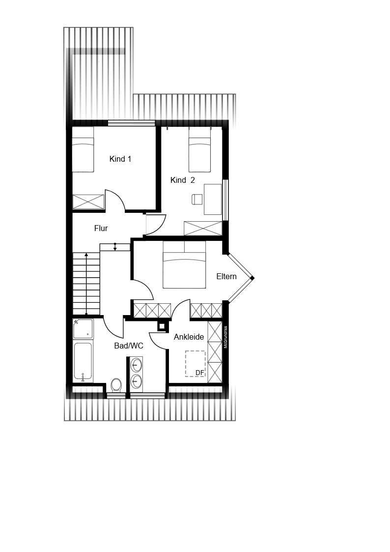
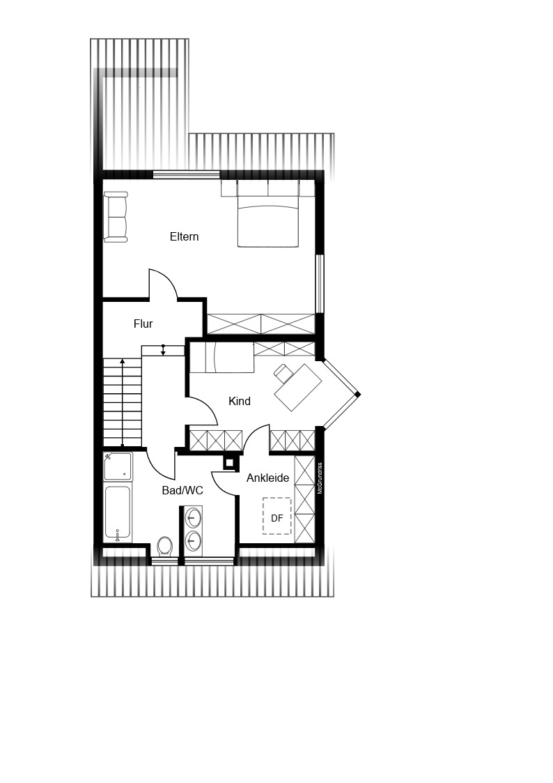
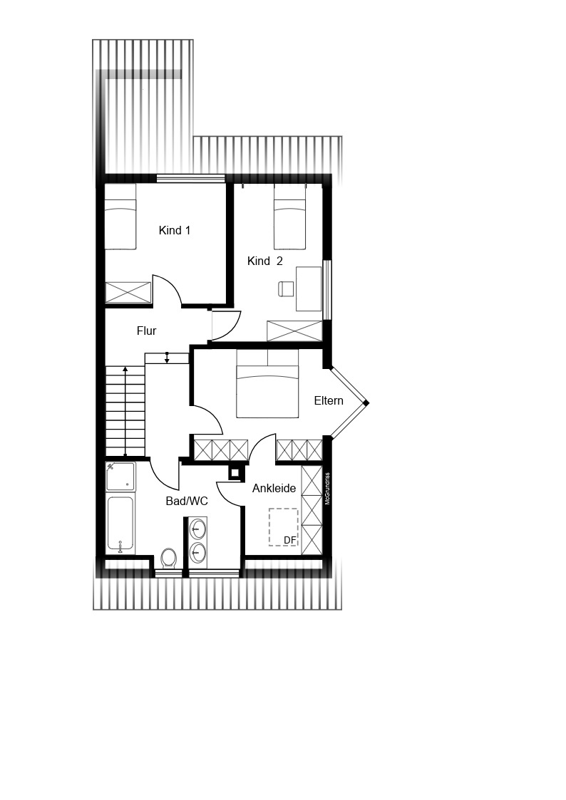
Im Dachgeschoss verbindet ein Flur alle weiteren Räume. Dazu zählt auch das große Badezimmer, welches sowohl eine Dusche als auch eine Badewanne bietet. Dieses Badezimmer, und auch das Gäste-WC im Erdgeschoss, sind mit Tageslichtfernstern ausgestattet. Die anderen Räume können beispielsweise als Kinder- und Schlafzimmer genutzt werden. Auf dieser Etage ist außerdem Teppichboden verlegt.
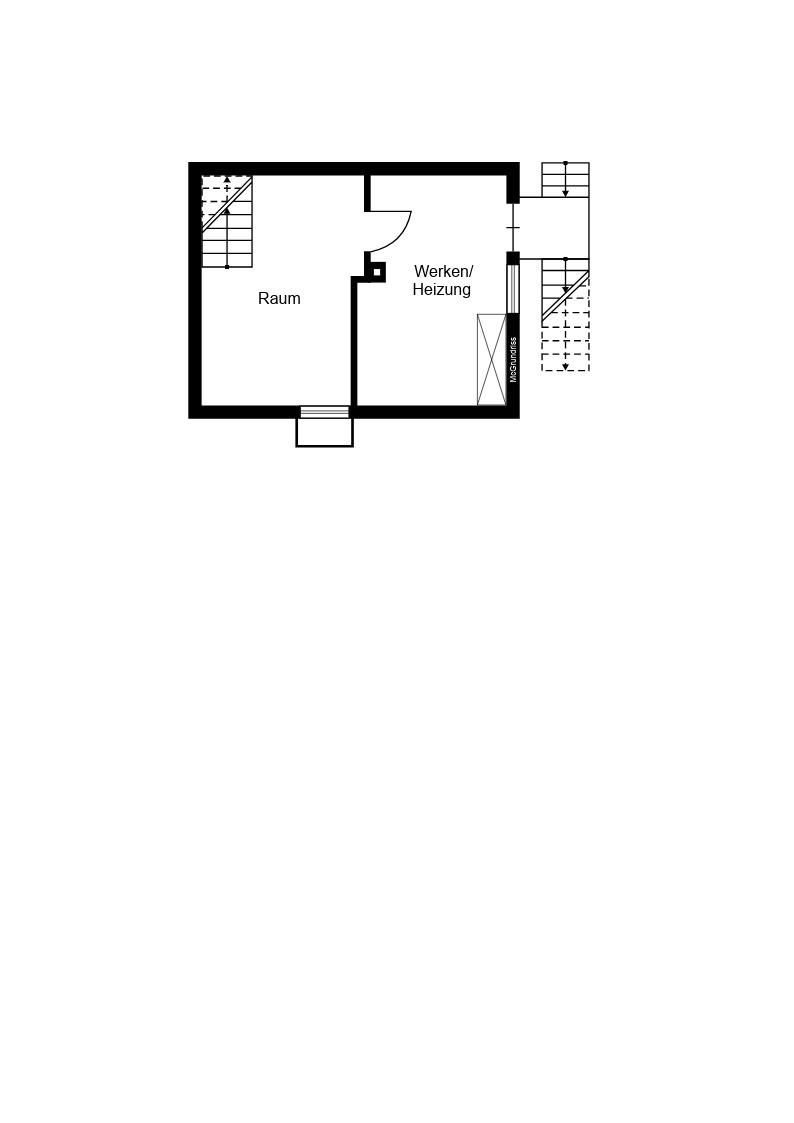
Im Untergeschoss befindet sich ein weiterer beheizter Raum mit Teppichboden, welcher problemlos als Büro genutzt werden kann. Im Heizungsraum nebenan befindet sich zudem die Sauna. Die Fenster im gesamten Haus und die Heizung stammen aus dem Baujahr des Hauses (1991). Außerdem ist eine Fußbodenheizung verlegt. Im Dachgeschoss bietet ein Dachspeicher zusätzlichen Stauraum, wobei die Decke für ideale Energieeffizienz gedämmt ist.
Das Inventar wird durch ein zusätzliches Entgelt in Höhe von 10.000,00 € als Aufschlag auf den Kaufpreis berechnet.
Dazu zählt:
– eine Infrarotlichtsauna
– Einbauschränke der Marke Interlübke
– Einbauküche mit Elektrogeräten u. a. von Marken wie Miele und Neff -
Flächen
- Wohnfläche: 127 m²
- Grundstücksfläche: 1 m²
- Nutzfläche: 28,93 m²
- Zimmer insgesamt: 5
- Schlafzimmer: 2
- Badezimmer: 1
- Separate WCs: 1
- Etagen: 2
- Stellplätze: 1
- Carport-Stellplätze: 1
- Terrassen: 1
Zustand & Erschließung
- Baujahr: 1991
- Zustand: gepflegt
- Keller: teilweise unterkellert
Sonstiges
- Immobilie ist verfügbar ab: nach Vereinbarung
-
– Terrasse
– elektrische Rollläden
– Wohngefühl wie in einem Haus
– bodentiefe Fenster
– Tageslichtfenster im Badezimmer
– Gäste-WC
– Sauna
- Art der Ausstattung: Standard
- Heizungsart: Fußbodenheizung
- Befeuerung: Gas
-
- Energieausweis-Art: Bedarf
- Energieausweis gültig bis: 16.10.2035
- Endenergiebedarf: 158,66 kWh/(m²*a)
- Energieeffizienzklasse: E
- Baujahr (Energieausweis): 1991
- Energieausweis-Jahrgang: ab Mai 2014
- Energieausweis-Gebäudeart: Wohngebäude
- Primärenergieträger: Gas
-
Das Objekt befindet sich in zentraler, zugleich ruhiger Wohnlage von Bergisch Gladbach. Die Umgebung ist geprägt von gepflegten Wohnhäusern, kleineren Mehrfamilienhäusern und begrünten Grundstücken, was ein angenehmes und familienfreundliches Wohnumfeld schafft.
Die Innenstadt von Bergisch Gladbach mit zahlreichen Einkaufs- und Versorgungsmöglichkeiten, Restaurants, Cafés, Ärzten und Apotheken ist in wenigen Minuten fußläufig erreichbar. Schulen, Kindergärten sowie verschiedene Freizeit- und Sporteinrichtungen befinden sich ebenfalls in der näheren Umgebung. Die Verkehrsanbindung ist sehr gut: Die S-Bahn-Station Bergisch Gladbach (S11 in Richtung Köln) liegt etwa zehn bis fünfzehn Gehminuten entfernt. Eine Bushaltestelle in der Nähe sorgt für eine bequeme Anbindung an den öffentlichen Nahverkehr. Mit dem Auto erreicht man über die Bundesstraße B506 und die Autobahn A4 (Anschlussstellen Moitzfeld oder Refrath) die Kölner Innenstadt in rund 20 bis 25 Minuten. Insgesamt bietet die Lage eine ideale Kombination aus Stadtnähe, guter Infrastruktur und ruhigem Wohnen in angenehmer Nachbarschaft.
-
- Kaufpreis: 498.000 €
- Käuferprovision: 3,57 % inkl. MwSt.
Grundrisse



































