Wohnimmobilie > Einfamilienhaus
Zu Verkaufen

Renovierungsbedürftiges Ein-/Zweifamilienhaus mit viel Platz und Entwicklungspotenzial

51570 Windeck
189.000 €

66275-8540
1979
168 m²
640 m²
6
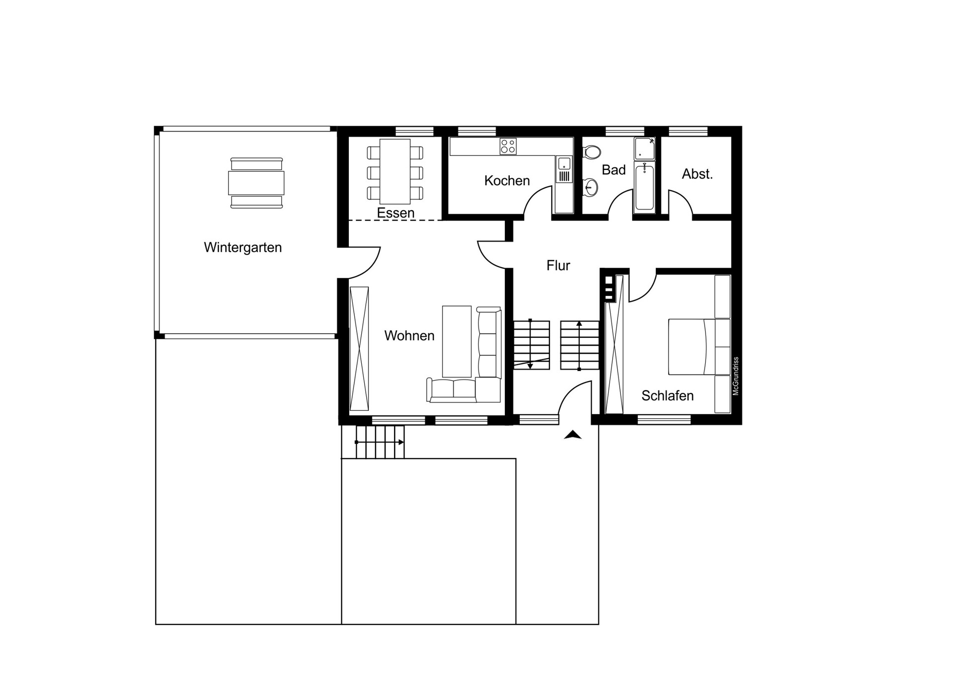
  • Die angebotene Immobilie verfügt über eine Gesamtwohnfläche von ca. 168 m². Das Haus bietet sich durch zwei Wohneinheiten perfekt für eine große Familie an. Im Erdgeschoss befindet sich eine großzügige 3,5-Zimmer-Wohnung mit ca. 92 m² Wohnfläche. Diese umfasst ein Schlafzimmer, ein Badezimmer, eine Küche sowie ein helles Wohn-/Esszimmer. Ein angebauter Wintergarten erweitert den Wohnbereich und schafft eine angenehme Wohnatmosphäre. Ergänzt wird das Raumangebot durch ein weiteres kleines Zimmer, das sich ideal als Büro oder Ankleidezimmer nutzen lässt. Die 3-Zimmer-Wohnung im 1. Obergeschoss bietet eine Wohnfläche von ca. 76 m² und teilt sich in ein Schlafzimmer, ein Kinderzimmer, ein Badezimmer, eine Küche sowie ein Wohn-/Esszimmer auf. Das Kellergeschoss verfügt über zwei Kellerräume, eine Waschküche, einen beheizten Raum mit Tageslichtfenster und kleinem Badezimmer sowie den Heizungsraum. Abgerundet wird das Angebot durch zwei Garagen sowie eine zusätzliche kleinere Garage, die sich hervorragend als Fahrrad- oder Lagerraum eignet.
    Das ca. 640 m² große Grundstück bietet einen großzügigen Garten mit einem ansprechenden Gartenhaus und lädt zum Entspannen und Verweilen im Freien ein.
  • Flächen

    • Wohnfläche: 168 m²
    • Grundstücksfläche: 640 m²
    • Nutzfläche: 90 m²
    • Zimmer insgesamt: 6
    • Schlafzimmer: 3
    • Badezimmer: 2
    • Etagen: 2
    • Garagenstellplätze: 2

    Zustand & Erschließung

    • Baujahr: 1979
    • Zustand: renovierungsbedürftig
    • Keller: voll unterkellert
  • – Zwei gut geschnittene Wohneinheiten

    – Zwei Garagen mit direktem Zugang in den Keller

    – Großzügiger Garten

    – Gute Busanbindung

    • Art der Ausstattung: Standard
    • Heizungsart: Zentralheizung
    • Befeuerung: Öl
    • Energieausweis-Art: Bedarf
    • Energieausweis gültig bis: 25.01.2036
    • Endenergiebedarf: 211,32 kWh/(m²*a)
    • Energieeffizienzklasse: G
    • Baujahr (Energieausweis): 1979
    • Energieausweis-Jahrgang: ab Mai 2014
    • Energieausweis-Gebäudeart: Wohngebäude
    • Primärenergieträger: Öl
    A+
    A
    B
    C
    D
    E
    F
    G
    211,32 kWh/(m²·a)
    H
  • Die Immobilie befindet sich in der idyllischen Gemeinde Windeck-Locksiefen im Herzen von Nordrhein-Westfalen. Diese charmante Region zeichnet sich durch ihre naturnahe Umgebung und eine hohe Lebensqualität aus. Eingebettet in die sanfte Hügellandschaft des Bergischen Landes, bietet Windeck eine harmonische Mischung aus Ruhe und Erholung sowie vielfältige Freizeitmöglichkeiten für Naturliebhaber und Familien. Die Umgebung ist geprägt von weitläufigen Wanderwegen, malerischen Ausblicken und der Nähe zur Sieg, die zu ausgedehnten Spaziergängen und Radtouren einlädt.
    Die Gemeinde selbst überzeugt durch eine gut ausgebaute Infrastruktur mit Einkaufsmöglichkeiten, Schulen und öffentlichen Einrichtungen im nahen Umkreis. Zudem ist Windeck verkehrstechnisch gut angebunden, sodass umliegende Städte und Wirtschaftszentren bequem erreichbar sind. Die Bewohner profitieren von einer entspannten Lebensweise und gleichzeitig von der Nähe zu den urbanen Zentren, was dieses Mehrfamilienhaus zu einem attraktiven Wohnort macht.

    • Kaufpreis: 189.000 €
    • Käuferprovision: 3,57

Ihre Ansprechpartner

0211-3026520
     
Sicher!