*PROVISIONSFREI* zu vermieten! NEUBAU in DO-Aplerbeck für Kitas, betreutes Wohnen, Pflegeheim.
-
Neubauimmobilie für Kitas, Pflegedienste, betreutes Wohnen in Dortmund-Aplerbeck.
ca. 1.100 m² Nutzfläche gesamt
ca. 800m² Nfl. Büro
ca. 300m² Nfl. Lager/Keller
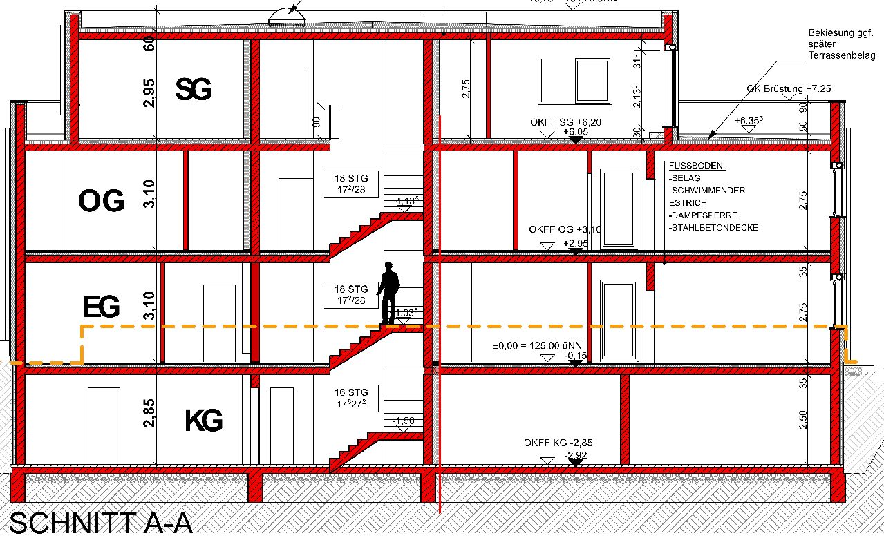
Diverse Stellplätze, 3 Etagen, einschl. Staffelgeschoss / Penthouse. Gute Lage, Erstbezug nach Neubau. -
Flächen
- Wohnfläche: 800 m²
- Nutzfläche: 800 m²
- Bürofläche: 800 m²
- Sonstige Fläche: 1.100 m²
- Gesamtfläche: 300 m²
- Wohneinheiten: 15
- Zimmer insgesamt: 15
- Etagen: 3
- Stellplatzart: Garage, Freiplatz
- Außenstellplätze: 10
- Garagenstellplätze: 10
Zustand & Erschließung
- Baujahr: 2021
- Zustand: Erstbezug
- Alter: Neubau
Sonstiges
- Immobilie ist verfügbar ab: Absprache
-
Parkett, elektrische Rollläden, fußbodenhohe Fensteranlagen, Rauchmelder, ca. 300 m² großer Keller-/Lagerraum, Gaszentralheizung, Aufzug, Rauchwarnanlage.
Um- und Ausbau kann nach den Wünschen des Mieters erfolgen!
Energieausweis in Vorbereitung – Neubau.
Miete: je nach Aufwand und Ausstattung, zzgl. Nebenkosten und Mehrwertsteuer.
Kaution: 3 Monatsmieten
Alle Preise verstehen sich zzgl. der gesetzlichen Mehrwertsteuer.
-
-
- Energieausweis-Jahrgang: nicht verfügbar
-
Das Objekt befindet sich an einer Hauptausfallstraße zum süd-/östlichen Stadtgebiet, nahe Autobahnzufahrt A 40/B1, öffentliche Verkehrsmittel, Bushaltestelle Ravensweg, Linie 420, 430, 436, NE4, unmittelbar vor der Tür. Das Objekt befindet sich nahe der Landeszentralbank (Neubau), sowie LWL und Malteser.
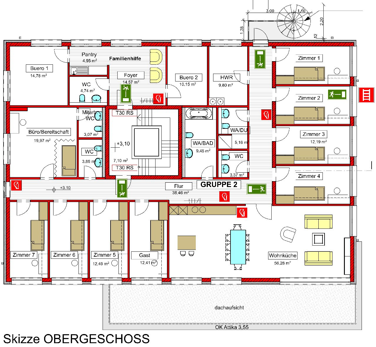
Grundrisse





































