Gewerbeimmobilie > Bürohaus
Zu Vermieten

Praxisräume Innenstadt Unna

59423 Unna
1.800 €

68336-7935
1955
160 m²
7
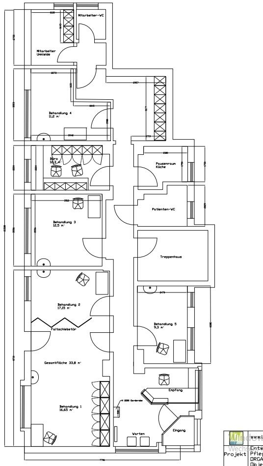
  • Die angebotenen Praxisräume befinden sich in einer gut erreichbaren Lage. Am Eingang wird eine Rampe errichtet die einen barrierefreien Zugang ermöglicht. Mit einer Gesamtfläche von 160 m² bietet die Praxis ausreichend Platz für eine vielfältige Nutzung. Der helle Empfangsbereich heißt Patienten freundlich willkommen und sorgt für eine angenehme Atmosphäre. Insgesamt stehen fünf Behandlungsräume zur Verfügung, die alle mit Wasseranschluss und Tageslicht ausgestattet sind, was eine optimale Arbeitsumgebung für medizinische Behandlungen gewährleistet. Zusätzlich gibt es ein Patienten-WC sowie ein separates Mitarbeiter-WC, um den Komfort für alle Nutzer zu erhöhen. Ein Büroraum ermöglicht administrative Tätigkeiten in ruhiger Umgebung, während ein Mitarbeiterraum Platz für Pausen und Besprechungen bietet. Sechs PKW-Stellplätze stehen direkt am Gebäude zur Verfügung, was die Erreichbarkeit für Patienten und Mitarbeiter erleichtert. Die Räumlichkeiten eignen sich ideal für medizinische Praxen oder therapeutische Anwendungen.
  • Flächen

    • Nutzfläche: 160 m²
    • Bürofläche: 160 m²
    • Gesamtfläche: 160 m²
    • Zimmer insgesamt: 7
    • Stellplätze: 6
    • Stellplatzart: Freiplatz
    • Außenstellplätze: 6

    Zustand & Erschließung

    • Baujahr: 1955

    Sonstiges

    • Immobilie ist verfügbar ab: sofort
    • Befeuerung: Gas
    • Energieausweis-Art: Verbrauch
    • Energieausweis gültig bis: 19.06.2026
    • Energieverbrauchskennwert: 161 kWh/(m²*a)
    • Warmwasser im Energieverbrauch enthalten: ja
    • Energieeffizienzklasse: F
    • Baujahr (Energieausweis): 1955
    • Energieausweis-Jahrgang: ab Mai 2014
    • Energieausweis-Gebäudeart: Nichtwohngebäude
    • Primärenergieträger: Gas
    A+
    A
    B
    C
    D
    E
    F
    161,00 kWh/(m²·a)
    G
    H
  • Die Lage zeichnet sich durch eine zentrale Position in Unna aus, umgeben von einem gemischten Wohn- und Geschäftsgebiet. Die unmittelbare Nähe zu Einkaufsmöglichkeiten und Dienstleistern sorgt für eine hohe Frequentierung. Die Verkehrsanbindung ist optimal, mit Anbindungen an den öffentlichen Nahverkehr sowie einer schnellen Erreichbarkeit der Autobahn, was die Anfahrt für Patienten erleichtert. Die Umgebung bietet ausreichend Parkmöglichkeiten, was für eine Arztpraxis vorteilhaft ist, da dies den Zugang für Patienten und deren Angehörige erleichtert und die Attraktivität der Praxis erhöht.

    • Kaltmiete: 1.800 €
    • monatl. Betriebs-/Nebenkosten: 200 €
    • monatl. Heizkosten: 220 €
    • Kaution: 3.600 €
    • Mieterprovision:

Ihre Ansprechpartner

0211-3026520
     
Sicher!