Neubauvorhaben Mettmann - Metzkausen 1 Familienhaus / Villa
-
Bauvorhaben: Hier entsteht in individueller Planung ein Einfamilienhaus mit ca. 120 – 200 m² Wohnfläche in gehobener Bauausführung.
Der Interessent stimmt mit dem erfahrenen Architekten seine Wunschplanung ab. Bei der namenhaften Baufirma planen Sie Ihr Wunschhaus. Eine seltene Gelegenheit Ihre Traumvilla zu erstellen. -
Flächen
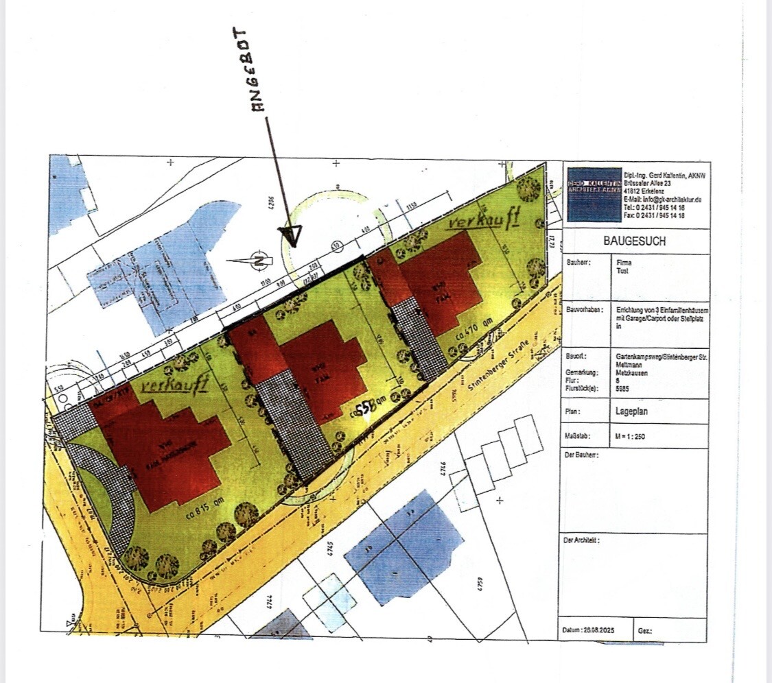
- Wohnfläche: 170 m²
- Grundstücksfläche: 558 m²
- Zimmer insgesamt: 4
- Schlafzimmer: 4
- Badezimmer: 2
- Etagen: 2
- Außenstellplätze: 1
- Garagenstellplätze: 1
Zustand & Erschließung
- Baujahr: 2026
Sonstiges
Kaufpreis je nach eigenen Ausführungswünschen und gewünschter Wohnfläche ab 800.000 EUR
KP GR und Gebäude Wfl 120qm KP 800.000 –
Wfl 170qm KP 970.000,- bei gehobener Ausführung und eigener Grundrissentwicklung.
– Im Alleinauftrag –
Haftung: Wir bemühen uns alle Angaben so vollständig wie möglich zu machen. Da wir uns hierbei auf die Angaben der jeweiligen Verkäufer verlassen müssen, können wir keine persönliche Haftung übernehmen.
Courtage: Die anteilige, für den Käufer anfallende, Nachweis- bzw.Vermittlungsgebühr beträgt 3,57 % inkl. der gesetzlichen MwSt.des Kaufpreises.
Finanzierung: Durch laufende Zusammenarbeit mit namhaften Finanzierungs-instituten sind wir stets in der Lage, Ihnen eine auf Ihre persönlichen Verhältnisse abgestimmte Finanzierung zu ermöglichen. Für die zusätzliche Finanzierungsbearbeitung wird von uns keine Kostenberechnung vorgenommen.- Immobilie ist verfügbar ab: nach Fertigstellung
-
Grundstücksgröße: insgesamt ca. 558 m²
Etagenzahl: 2
Zimmer: 4 bis 6- Heizungsart: Zentralheizung
-
- Energieausweis-Jahrgang: nicht verfügbar
-
Die reine Wohnstraße Gartenkampsweg / Stintenbergerstraße befindet sich in verkehrsberuhigter Wohnlage im beliebten Ortsteil Mettmann Metzkausen. Die Nachbarbebauung besteht überwiegend in gewachsener Wohnlage, Bebauung mit Einfamilienhäusern bzw. Eigentumswohnungen in Gebäuden bis zu 2 ½ geschossiger Bauweise. Ebenso hervorzuheben ist die gute Infrastruktur und die Verkehrsanbindung dieser Wohngegend.
-
- Kaufpreis: 970.000 €
- Käuferprovision: 3.57 %


