Gewerbeimmobilie > Halle
Zu Verkaufen

Lagerhalle mit Büroräume und Einliegerwohnung in zentraler Lage von Werl

59457 Werl
380.000 €

20054-2827K
1979
285 m²
2.210 m²
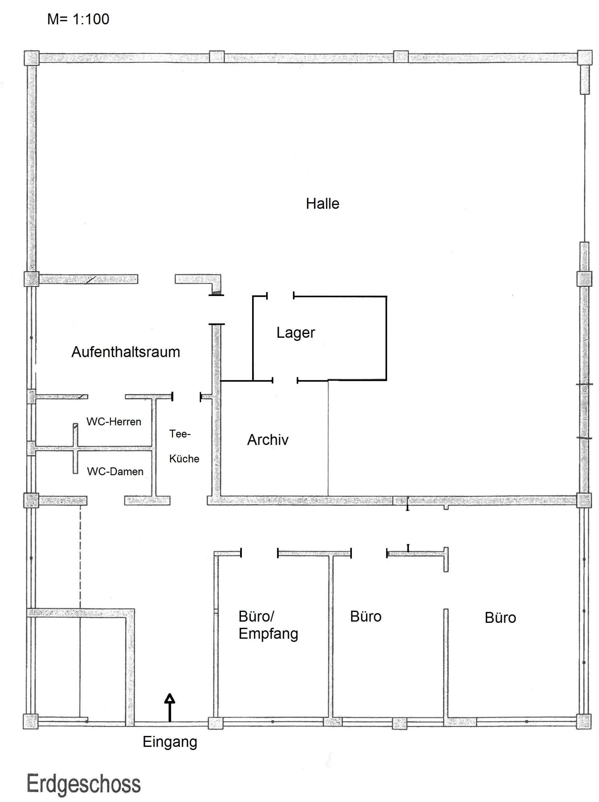
  • Zum Verkauf steht eine vielseitig nutzbare Gewerbeimmobilie auf einem ca. 2.210 m² großen Grundstück. Das Objekt umfasst eine geräumige Lagerhalle ca. 150m², flexible Büroräume ca. 135 m² sowie eine separate Einliegerwohnung. Die Immobilie bietet eine attraktive Kombination aus Lager-, Büro- und Wohnfläche und ist somit ideal für verschiedene gewerbliche Nutzungen geeignet.
    Die Stellfläche und die Einliegerwohnung sind derzeit vermietet. Die Büroräume sowie die Lagerhalle stehen zur freien Verfügung und können vom neuen Eigentümer selbst genutzt oder ebenfalls vermietet werden.

    Die Gesamtmieteinnahmen bei Vollvermietung belaufen sich auf 25.920 EUR netto pro Jahr.
  • Flächen

    • Grundstücksfläche: 2.210 m²
    • Nutzfläche: 285 m²
    • Lagerfläche: 150 m²
    • Sonstige Fläche: 135 m²
    • Gesamtfläche: 285 m²

    Zustand & Erschließung

    • Baujahr: 1979
    • Zustand: gepflegt

    Sonstiges

    • Immobilie ist verfügbar ab: nach Vereinbarung
    • Befeuerung: Gas
    • Energieausweis-Art: Bedarf
    • Energieausweis gültig bis: 28.11.2030
    • Endenergiebedarf: 130,80 kWh/(m²*a)
    • Energieeffizienzklasse: E
    • Baujahr (Energieausweis): 1979
    • Energieausweis-Ausstellungsdatum: 29.11.2020
    • Energieausweis-Jahrgang: ab Mai 2014
    • Energieausweis-Gebäudeart: Nichtwohngebäude
    • Primärenergieträger: Gas
    A+
    A
    B
    C
    D
    E
    130,80 kWh/(m²·a)
    F
    G
    H
  • Das Objekt liegt in einem kleinen Gewerbegebiet in östlicher Lage von Werl. Die unmittelbare Nähe zur B1, sowie A44 und A445 zeichnet diese Immobilie aus.

    • Kaufpreis: 380.000 €
    • Käuferprovision: 2.38 %

Ihre Ansprechpartner

0211-3026520
     
Sicher!