Wohnimmobilie > Doppelhaushälfte
Zu Verkaufen

Ihr neues Zuhause: Einfamilienhaus mit Einliegerwohnung und Wohlfühlgarten

53804 Much
498.000 €

66275-8493
2001
198 m²
560 m²
6
  • Diese gepflegte Doppelhaushälfte mit Einliegerwohnung, erbaut im Jahr 2001, besticht durch ihre großzügige Raumgestaltung, die lichtdurchflutete Wohnatmosphäre sowie die attraktive Hanglage mit weitem Ausblick.

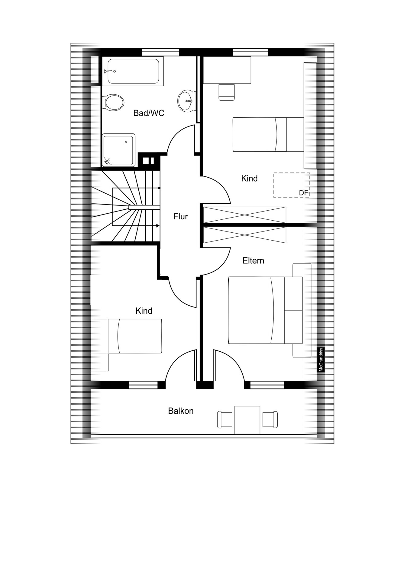
    Hauptwohnbereich (ca. 133 m² Wohnfläche) Der Hauptteil des Hauses erstreckt sich über zwei Etagen und präsentiert sich mit einem modernen, offenen Grundriss. Im Erdgeschoss befinden sich die offene Küche sowie der angrenzende Wohn- und Essbereich, der dank großflächiger Fenster besonders hell wirkt. Ein Gäste-WC und ein funktionaler Abstellraum ergänzen diese Ebene. Vom Wohnbereich aus gelangt man direkt auf den Balkon, der einen wunderschönen Blick ins Grüne ermöglicht.
    Im Dachgeschoss liegen drei gut geschnittene Schlafzimmer und ein helles Badezimmer. Zusätzlich gehört ein Kellerraum dazu, der als praktische Abstell- oder Lagerfläche dient.

    Einliegerwohnung (ca. 65 m² Wohnfläche) Die separat zugängliche Einliegerwohnung im Souterrain profitiert aufgrund der Hanglage von bodentiefen Fenstern und einem direkten Zugang zu einer eigenen Terrasse. Sie umfasst ein Schlafzimmer mit angrenzendem Ankleidezimmer, ein Badezimmer sowie einen offenen Wohnbereich mit integrierter Küche – perfekt geeignet für Gäste, Familienmitglieder oder zur Vermietung.

    Außenbereich und Ausstattung
    Alle Etagen bieten Zugang ins Freie – sei es über den Balkon mit Fernblick oder die Terrasse mit Anschluss an den Garten. Der großzügige, gepflegte Garten lädt zum Entspannen ein und verfügt über ein Gartenhaus mit Stromanschluss.

    Abgerundet wird das Angebot durch ein Carport mit zwei Stellplätzen.
    Dieses Haus bietet vielfältige Nutzungsmöglichkeiten und ein gemütliches Zuhause in ruhiger Lage – ideal für Familien, Mehrgenerationenwohnen oder die Kombination aus Eigenbedarf und Vermietung. Bei Bedarf kann man die Einliegerwohnung auch ohne großen Aufwand wieder mit in das Haupthaus integrieren.
  • Flächen

    • Wohnfläche: 198 m²
    • Grundstücksfläche: 560 m²
    • Nutzfläche: 19,77 m²
    • Zimmer insgesamt: 6
    • Schlafzimmer: 4
    • Badezimmer: 2
    • Separate WCs: 1
    • Einliegerwohnung: ja
    • Balkone: 2
    • Terrassen: 1

    Zustand & Erschließung

    • Baujahr: 2001
    • Zustand: gepflegt
    • Keller: voll unterkellert

    Sonstiges

    • Immobilie ist verfügbar ab: nach Vereinbarung
  • – Baujahr: 2001

    – Gesamtwohnfläche: ca. 198 m² (Haupthaus ca. 133 m², Einliegerwohnung ca. 65 m²)

    – Sehr gepflegter Zustand

    – Großzügiger, heller Wohn- und Essbereich mit offener Küche

    – Balkon und Terrasse mit beeindruckendem Weitblick

    – Separater Eingang zur Einliegerwohnung

    – Einliegerwohnung kann ohne großen Aufwand wieder mit der Hauptwohnung verbunden werden

    – Großer Garten für Erholung und Freizeit

    – Carport mit zwei Stellplätzen

    • Art der Ausstattung: gehoben
    • Befeuerung: Öl
    • Einliegerwohnung
    • Gäste-WC
    • Energieausweis-Art: Bedarf
    • Energieausweis gültig bis: 06.10.2035
    • Endenergiebedarf: 116,39 kWh/(m²*a)
    • Energieeffizienzklasse: D
    • Baujahr (Energieausweis): 2001
    • Energieausweis-Jahrgang: ab Mai 2014
    • Energieausweis-Gebäudeart: Wohngebäude
    • Primärenergieträger: Öl
    A+
    A
    B
    C
    D
    116,39 kWh/(m²·a)
    E
    F
    G
    H
  • Die angebotene Doppelhaushälfte befindet sich in einer begehrten Wohngegend der charmanten Gemeinde Much im malerischen Nordrhein-Westfalen. Eingebettet in die sanfte Hügellandschaft des Bergischen Landes, bietet diese Lage eine perfekte Balance aus Ruhe und guter Anbindung an die städtische Infrastruktur.

    Much ist bekannt für seine idyllische ländliche Umgebung und den hohen Freizeitwert, den es durch zahlreiche Wander- und Radwege bietet. Die einladende Gemeinde besticht durch ihre traditionsreiche Kultur und ein reges Gemeinschaftsleben. Zahlreiche Einkaufsmöglichkeiten, Restaurants und Cafés sind schnell erreichbar und tragen zur hohen Lebensqualität bei.
    Familien schätzen die Nähe zu Schulen und Kindergärten, während Pendler von der guten Verkehrsanbindung profitieren. Die nächstgelegenen Städte, wie Köln und Bonn, sind durch die nahegelegenen Autobahnanschlüsse sowie ein gut ausgebautes öffentliches Verkehrsnetz bequem zu erreichen, was Much zu einem attraktiven Wohnort für Berufspendler macht.

    Insgesamt bietet diese Lage eine unvergleichliche Kombination aus ländlichem Charme und städtischer Nähe, wodurch sie sich ideal für Familien und Paare eignet, die in einer ruhigen und dennoch gut angebundenen Umgebung leben möchten.

    • Kaufpreis: 498.000 €
    • Käuferprovision: 3,57

Ihre Ansprechpartner

0211-3026520
     
Sicher!