Gewerbeimmobilie > Bürohaus
Zu Vermieten

Ideal für Ihr Business!

59929 Brilon
1.130 €

20066-1635
2000
162 m²
5
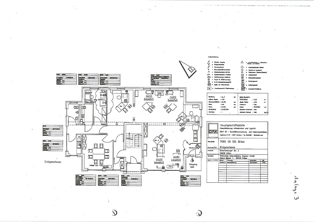
  • Neuwertige Bürofläche im Erdgeschoss eines attraktiven Wohn-/Geschäftshauses. Die Raumaufteilung ist variabel. Ebenerdiger Eingang. Ausreichend Fensterflächen sorgen für sehr gute Belichtung. Das attraktive Umfeld mit Büro-, Praxis und Wohnnutzung macht den Standort so interessant. Der jetzige Mieter hat die Flächen 25 Jahre genutzt. Auf dem Parkdeck stehen ausreichend Parkplätze für den Mieter zur Verfügung. Ebenso direkt vor dem Objekt. Ein Bezug ist kurzfristig möglich. Besichtigung lohnt!
  • Flächen

    • Nutzfläche: 162 m²
    • Bürofläche: 162 m²
    • Gesamtfläche: 162 m²
    • Zimmer insgesamt: 5
    • Stellplätze: 5
    • Stellplatzart: Freiplatz
    • Außenstellplätze: 5

    Zustand & Erschließung

    • Baujahr: 2000
    • Zustand: neuwertig

    Sonstiges

    • Immobilie ist verfügbar ab: sofort
  • 5 Räme (variabel), Küche, 2 x Toilette, Abstellraum, 2 Abstellräume im Dachgeschoss, Kfz.-Kundenparkplätze

    • Art der Ausstattung: Standard
    • Heizungsart: Zentralheizung
    • Befeuerung: Gas
    • Bodenbelag: Teppich
    • Energieausweis-Art: Verbrauch
    • Energieausweis gültig bis: 26.07.2030
    • Energieverbrauchskennwert: 96 kWh/(m²*a)
    • Warmwasser im Energieverbrauch enthalten: ja
    • Energieeffizienzklasse: C
    • Baujahr (Energieausweis): 2000
    • Energieausweis-Ausstellungsdatum: 27.07.2020
    • Energieausweis-Jahrgang: ab Mai 2014
    • Energieausweis-Gebäudeart: Nichtwohngebäude
    • Primärenergieträger: Gas
    A+
    A
    B
    C
    96,00 kWh/(m²·a)
    D
    E
    F
    G
    H
  • In zentraler und stark frequentierter Lage von Brilon befindet sich diese attraktive Büro-/Praxisfläche. Zum Marktplatz und Fußgängerzone sind es nur wenige Gehminuten. Auch mit dem Auto ist das Mietobjekt ideal zu erreichen. Direkte Anbindung an das überörtliche Verkehrsnetz.Bushaltestelle ca. 50 Meter entfernt.

    • Kaltmiete: 1.130 €

Ihre Ansprechpartner

0211-3026520
     
Sicher!