Wohnimmobilie > Maisonette-Wohnung
Zu Vermieten

Hofromantik! Stilvolle Maisonettewohnung mit eigenem Eingang in ländlicher Idylle!

40489 Düsseldorf
1.200 €

20023-M250702
2025
73 m²
2
  • Hofromantik! Stilvolle Maisonettewohnung mit eigenem Eingang in ländlicher Idylle!

    Willkommen in Ihrem neuen Zuhause! Diese hochwertige Maisonettewohnung in einem exklusiven Neubau bietet modernen Wohnkomfort auf zwei Etagen mit rund 73 m² Wohnfläche – ideal für Singles oder Paare.

    Das Besondere auf einen Blick:

    – Maisonettewohnung mit eigenem Eingang
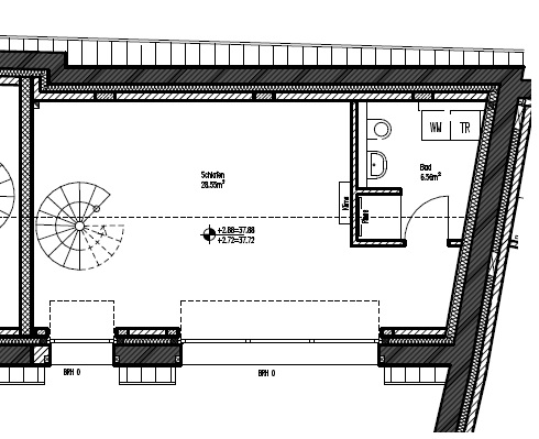
    – ca. 73 m² Wohnfläche verteilt auf Erdgeschoss und Dachgeschoss
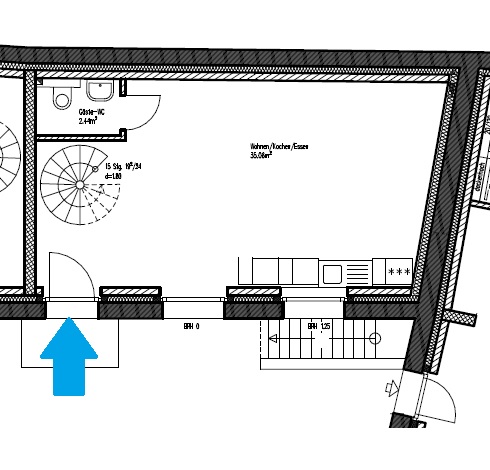
    – Erdgeschoss: Wohnen und Kochen vereint in einem Raum
    – Offene Küche mit moderner Einbauküche
    – Gäste-WC im EG und elegantes Duschbad im DG
    – Waschmaschinenanschluss im Bad
    – Klimaanlage für heiße Sommertage
    – Nachhaltige Wärmepumpenheizung
    – Erstbezug in einem stilvollen Neubau
    – Ruhige, ländliche Lage am historischen Schloss Kalkum

    Die offene Raumgestaltung im Erdgeschoss schafft eine einladende Wohnatmosphäre. Im Dachgeschoss erwartet Sie ein weiterer großer Raum zum Schlafen und Arbeiten und das hochwertig ausgestattete Bad – ein perfekter Rückzugsort nach einem langen Tag.

    Eine zur Wohnung gehörende Terrasse oder ein Balkon sind nicht vorhanden.

    Die Wohnung liegt inmitten einer idyllischen, grünen Umgebung nahe Schloss Kalkum – ein Ort, der Ruhe und Natur mit guter Erreichbarkeit zur Stadt verbindet. Hier wohnen Sie ruhig und dennoch gut angebunden – ein idealer Mix für alle, die Entspannung im Grünen suchen, ohne auf Komfort verzichten zu wollen.

    Vereinbaren Sie jetzt einen Besichtigungstermin – wir freuen uns auf Ihre Anfrage!
  • Flächen

    • Wohnfläche: 73 m²
    • Wohneinheiten: 1
    • Zimmer insgesamt: 2
    • Schlafzimmer: 1
    • Badezimmer: 1
    • Separate WCs: 2
    • Etagen: 1
    • Stellplätze: 1
    • Stellplatzart: Freiplatz
    • Außenstellplätze: 1

    Zustand & Erschließung

    • Baujahr: 2025
    • Zustand: Erstbezug
    • Alter: Neubau

    Sonstiges

    • Immobilie ist verfügbar ab: nach Vereinbarung
    • Haustiere erlaubt: ja
  • – moderne Einbauküche
    – Einbauspots und Leuchten in allen Räumen
    – Gäste-WC
    – Duschbad
    – Vinylböden
    – Klimaanlage im OG
    – Fußbodenheizung
    – Wärmepumpenheizung
    – Abstellraum ebenerdig außerhalb der Wohnung
    – Fahrrad-Abstellraum
    – Stellplatz oder Garage können bei Bedarf separat gemietet werden

    • Heizungsart: Zentralheizung, Fußbodenheizung
    • Befeuerung: Luft-Wärmepumpe
    • Badausstattung: Dusche
    • Küche: Einbauküche, Offene Küche
    • Abstellraum
    • Kabel/Sat-TV
    • Energieausweis-Art: Bedarf
    • Energieausweis gültig bis: 15.07.2035
    • Endenergiebedarf: 68,20 kWh/(m²*a)
    • Energieeffizienzklasse: B
    • Baujahr (Energieausweis): 2025
    • Energieausweis-Ausstellungsdatum: 16.07.2025
    • Energieausweis-Jahrgang: ab Mai 2014
    • Energieausweis-Gebäudeart: Wohngebäude
    • Primärenergieträger: Luft-Wärmepumpe
    A+
    A
    B
    68,20 kWh/(m²·a)
    C
    D
    E
    F
    G
    H
  • Die Wohnung liegt im grünen und ruhigen Stadtteil Kalkum – einer der begehrtesten Wohnlagen Düsseldorfs. Die Umgebung besticht durch gepflegte Nachbarschaften, eine hohe Wohnqualität und die Nähe zu Feldern, Wiesen sowie dem Schloss Kalkum mit seinem idyllischen Park – ideal für Spaziergänge und Erholung.

    Trotz der ruhigen Lage ist die Anbindung hervorragend: Bus- und U-Bahnlinien, sowie die Schnellstraße B8n bieten eine schnelle Verbindung in die Innenstadt. Auch der beliebte Klemensplatz in Kaiserswerth mit Gastronomie, Einkaufsmöglichkeiten und Rhein-Nähe ist schnell erreichbar.

    Alle wichtigen Einrichtungen des täglichen Bedarfs wie Supermärkte, Ärzte, Schulen und Kindergärten befinden sich in der Nähe. Die umliegenden Stadtteile Kaiserswerth, Angermund und Ratingen erweitern das Angebot an Freizeit- und Gastronomiemöglichkeiten.
    Dank der Nähe zur A44 sowie der guten ÖPNV-Anbindung sind Innenstadt, Flughafen und Messegelände in wenigen Minuten erreichbar.

    Diese Lage vereint naturnahes, ruhiges Wohnen mit urbaner Erreichbarkeit – ideal für alle, die Lebensqualität in grüner Umgebung mit Stadtnähe verbinden möchten.

    • Kaltmiete: 1.200 €
    • monatl. Betriebs-/Nebenkosten: 200 €
    • Heizkosten in Warmmiete enthalten: ja
    • Kaution: 3.600 €
    • Außenstellplatzmiete: 50 €

Ihre Ansprechpartner

0211-3026520
     
Sicher!