Gepflegte Praxis- und Bürofläche in zentraler Lage ***PROVISIONSFREI***
-
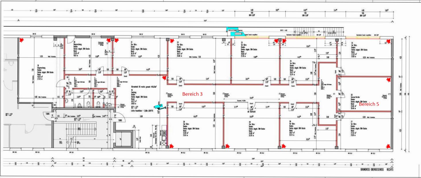
Die Gesamtfläche der noch verfügbaren Büro- und Praxisflächen beläuft sich auf 483 m².
Der beigefügte Grundriss stellt die aktuelle Aufteilung dar. Bei konkretem Mietinteresse kann die Raumaufteilung ggf. angepasst werden.
Über den Eingangsbereich erreichen Sie die offene Küche sowie den Flur, von dem alle 14 Räumlichkeiten abgehen. Hierin enthalten sind zwei separate WC- Anlagen und ein Serverraum. Die restlichen Räume können als Büro- oder auch als Praxisräume genutzt werden. Sie sind klimatisiert, modern und repräsentativ. -
Flächen
- Nutzfläche: 483 m²
- Bürofläche: 483 m²
- Gesamtfläche: 483 m²
- Zimmer insgesamt: 12
Zustand & Erschließung
- Baujahr: 2014
Sonstiges
Die monatliche Betriebskostenvorauszahlung beträgt inkl. Heizkosten 4,- pro m².
Kostenübersicht Büros: Nettokaltmiete: 11,- / m² + Betriebskostenvorauszahlung inkl. Heizkosten: 4,- / m² = Zwischensumme: 15,- / m² + Mehrwertsteuer: 2,85 / m² = Bruttowarmmiete inkl. MwSt. 17,85 / m².
Die Höhe der Kaution ist von Fall zu Fall mit dem Eigentümer abzustimmen. Bezüglich der Form der Kaution (z. B. Bankbürgschaft) bitten wir um Rücksprache.- Immobilie ist verfügbar ab: sofort
- gewerbliche Nutzung möglich: ja
-
Ausstattung:
+ Ausreichend PKW-Stellplätze direkt vor dem Gebäude
+ Aufzug
+ Gepflegte Räumlichkeiten
+ Provisionsfrei für den Mieter
+ Klimaanlage
+ Alarmanlage
+ repräsentative Einbauküche
+ Wärmeversorgung über zentrale Luft-Wasser-Wärmepumpenanlage, Abdeckung der Leistungsspitzen durch zugeschaltete Gas-Brennwertheizung
+ Beheizung über thermostatgesteuerte Fußbodenheizung
+ Lüftungsanlagen für alle innenliegenden Räume nach DIN, Arbeitsstättenverordnung und den neusten Regeln der Technik
+ Bodenbelag: Teppichboden
+ Innenwände weiß
+ Rasterakustikabhangdecke
+ Netzwerkverkabelung- Art der Ausstattung: gehoben
- Heizungsart: Fußbodenheizung
- Befeuerung: Gas, Erdwärme
- Bodenbelag: Fliesen, Teppich
-
- Primärenergieträger: Gas, Erdwärme
-
Gewerbegebiet Im Mühlenbruch in Königswinter – Oberdollendorf.
Unmittelbar an der Ortsgrenze zu Bonn-Oberkassel, direkte Autobahnanbindung zur B42. Öffentliche Verkehrsmittel sind fußläufig erreichbar.
Neben einer Tankstelle, einem Baumarkt und diverser Einzelhandelsflächen gibt es in diesem Gewerbegebiet moderne Büro- und Ärztehäuser. -
- Kaltmiete: 5.313 €
- monatl. Betriebs-/Nebenkosten: 1.932 €
- Heizkosten in Warmmiete enthalten: ja
Grundrisse




















