freistehendes 6-Parteienhaus in verkehrsgünstiger Wohnlage von Siegburg mit 5 Garagen
-
Dieses freistehende Mehrfamilienhaus auf einem ca. 739 m² großen Grundstück bietet eine attraktive Anlagemöglichkeit für Investoren. Das Objekt verfügt über ca. 378 m² Wohnfläche sowie ca. 125 m² Nutzfläche und erstreckt sich über Kellergeschoss, Erdgeschoss, Obergeschoss und Dachgeschoss. Die durchdachte Aufteilung bildet eine sehr gute Basis für eine langfristige Vermietung und weitere Wertsteigerung.
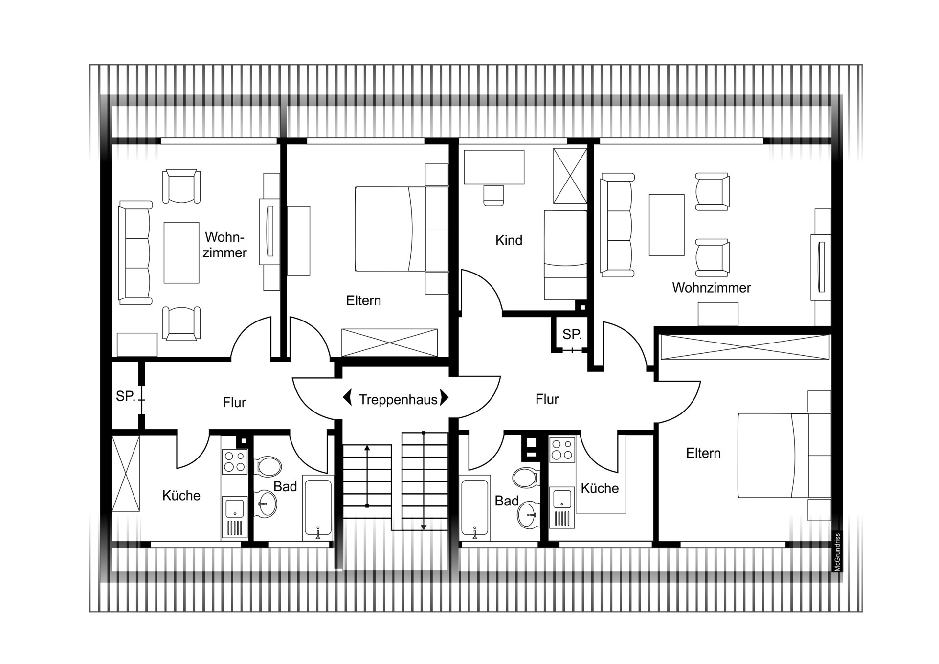
Das Haus umfasst insgesamt sechs Wohneinheiten, verteilt auf jeweils zwei Wohnungen pro Etage. Im Erdgeschoss befinden sich eine 2-Zimmer-Wohnung mit ca. 58 m² Wohnfläche und Loggia sowie eine 3-Zimmer-Wohnung mit ca. 73 m² Wohnfläche und Loggia. Das Obergeschoss ist identisch aufgeteilt und bietet ebenfalls eine 2-Zimmer-Wohnung (ca. 58 m², Loggia) sowie eine 3-Zimmer-Wohnung (ca. 73 m², Loggia). Im Dachgeschoss stehen eine 2-Zimmer-Wohnung mit ca. 52 m² sowie eine 3-Zimmer-Wohnung mit ca. 64 m² zur Verfügung. Die geringeren Flächen ergeben sich durch die vorhandenen Dachschrägen. Die 2- bzw. 3-Zimmer-Wohnungen sind jeweils gleich geschnitten, was eine einheitliche Vermietbarkeit und planbare Bewirtschaftung unterstützt.
Die Ausstattung der Wohnungen ist als einfach bis normal einzustufen. Das Gebäude verfügt über Kunststofffenster mit Isolierverglasung und Rollläden. Beheizt wird das Objekt über eine Ölheizung mit einem ca. 12.000 Liter Tank. Die Warmwasseraufbereitung erfolgt über Durchlauferhitzer.
In den 5 der 6 Wohnungen im Erd- und Obergeschoss wurden bereits verschiedene Renovierungen vorgenommen. Es erfolgten unter anderem die Verlegung neuer Laminatböden, die Erneuerung eines Badezimmers sowie das Neuverfliesen der Küche. In allen Wohnungen im Erdgeschoss wurden die Fenster teilweise in den Jahren 2010 und 2020 erneuert.
Ein weiterer Pluspunkt ist die Vollunterkellerung: Das Kellergeschoss umfasst sechs separate Kellerräume, einen Waschraum mit Ausgang zur Außenanlage, einen Trockenraum, Flur, Heizraum sowie Tankraum. Für die Bewohner bzw. Mieter stehen zudem fünf Garagen zur Verfügung.
Die aktuelle Jahreskaltmiete beträgt ca. 34.332 € und bietet bei entsprechender Weiterentwicklung der Einheiten zusätzliches Erhöhungspotenzial. Insgesamt handelt es sich um ein solides Mehrfamilienhaus mit praktischer Aufteilung und überzeugenden Rahmenbedingungen für eine nachhaltige Kapitalanlage.
Bilder der Wohnungen folgen noch. -
Flächen
- Vermietbare Fläche: 378 m²
- Wohneinheiten: 6
Zustand & Erschließung
- Baujahr: 1966
- Keller: voll unterkellert
-
– Bäder mit Tageslichtfenster ausgestattet
– separate Küchen
– sehr gute Raumaufteilung der einzelnen Wohnungen
– bereits erfolgte Renovierungen in 5 der 6 Wohnungen
– 5 Garagen
– großes Grundstück mit neu angelegtem Garten
- Art der Ausstattung: Standard
-
- Energieausweis-Art: Bedarf
- Energieausweis gültig bis: 05.02.2036
- Endenergiebedarf: 279,10 kWh/(m²*a)
- Energieeffizienzklasse: H
- Baujahr (Energieausweis): 1983
- Energieausweis-Jahrgang: ab Mai 2014
- Energieausweis-Gebäudeart: Wohngebäude
-
Die Immobilie befindet sich in Siegburg, einer attraktiven Kreisstadt im Rhein-Sieg-Kreis zwischen Köln und Bonn. Durch ihre zentrale Lage im Rheinland bietet Siegburg eine hervorragende Infrastruktur sowie eine optimale Anbindung an das überregionale Verkehrsnetz. Der ICE-Bahnhof Siegburg/Bonn ermöglicht schnelle Verbindungen z. B. nach Köln (ca. 20 Minuten) oder Frankfurt. Auch die Autobahnen A3, A59 und A560 sind in wenigen Fahrminuten erreichbar und bieten eine ausgezeichnete Erreichbarkeit für Berufspendler wie auch für überregionale Fahrten.
Siegburg ist bekannt für seine historische Altstadt mit vielfältigen Einkaufsmöglichkeiten, einem attraktiven gastronomischen Angebot sowie kulturellen Einrichtungen. Familien profitieren von einem breiten Angebot an Schulen, Kindergärten und Freizeiteinrichtungen. Die Stadt bietet zudem ein umfangreiches Naherholungsangebot mit Parks, dem Michaelsberg und naturnahen Wander- und Radwegen in der Umgebung.
Das Mehrfamilienhaus liegt ruhig und in einem familienfreundlichen Wohngebiet. In unmittelbarer Nähe befinden sich mehrere Kindergärten, Schulen sowie Einkaufsmöglichkeiten des täglichen Bedarfs. Eine Bushaltestelle mit Anschluss an das Siegburger Stadtzentrum ist fußläufig erreichbar.Durch die naturnahe Lage am Waldrand sind Spaziergänge, Jogging- oder Fahrradtouren direkt ab der Haustür möglich. Gleichzeitig sind Sie in wenigen Minuten mit dem Auto oder öffentlichen Verkehrsmitteln im Zentrum von Siegburg. Die Wohnlage ist Ideal für Familien, Berufstätige und Ruhesuchende.
-
- Kaufpreis: 580.000 €
- Käuferprovision: 3,57 % inkl. MwSt.
- X-fache (Kaufpreis bez. auf Jahresmiete): 16.89
- Aktuelle Mieteinnahmen pro Jahr: 34.332 €
- Aktuelle Mieteinnahmen (soll): 34.332 €
Grundrisse











