Gewerbeimmobilie > Bürohaus
Zu Vermieten

Moderne klimatisierte Büroflächen mit Lager in Hagen Lennetal! 705 m² bis 2000 m², ca. 50 Parkplätze

58093 Hagen
Preis auf Anfrage

172732-6466
1992
1.970 m²
30
  • Sind Sie auf der Suche nach gut gelegenen, flexiblen Büroräumen, die sowohl Bedürfnisse kleiner als auch großer Unternehmen perfekt erfüllen? Wir präsentieren Ihnen die ideale Büroetage im Hagener Norden!

    Ihre Vorteile auf einen Blick:

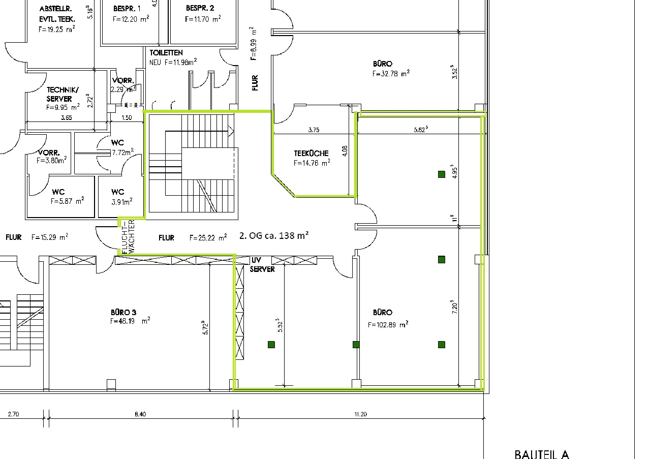
    Flexibilität in der Raumgestaltung: Wählen Sie aus teilbaren Büroflächen von 705 m² bis ca. 2000 m². Ob großzügige Einzelbüros oder kreative Teamsupport- oder Schulungsräume – gestalten Sie Ihre Räume nach Ihrem Bedarf!

    Moderne und klimatisierte Räumlichkeiten: Alle Büroflächen im 1. Obergeschoss sowie ein zusätzlicher Serverraum sind klimatisiert und verfügen über eine moderne LAN-Vernetzung. Hier ist Ihr Unternehmen bestens aufgehoben – auch bei steigenden Temperaturen.

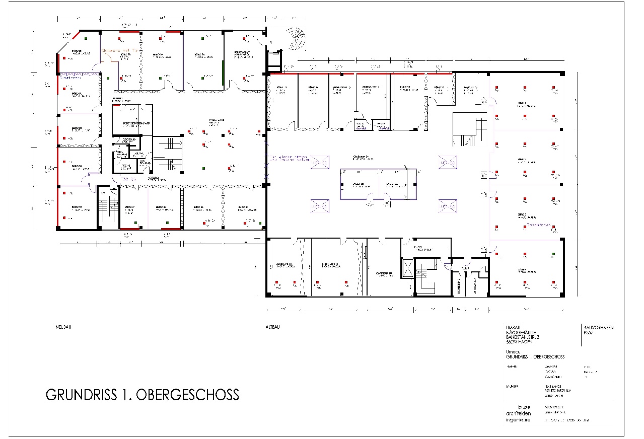
    Optimale Logistik: Vier Treppenhäuser, ein Personenaufzug sowie ein praktischer Lastenaufzug verbinden das Erdgeschoss mit dem Obergeschoss.
    Überdachte Laderampe mit direktem Zugang zum hinteren Lager vorhanden. Ladebereich ist eingezäunt.

    Barrierefreiheit: Ein Personenaufzug mit zusätzlicher Zugangsmöglichkeit zur rechten Büroetage im 1. OG.
    Inspirierendes Arbeitsumfeld: Im lichtdurchfluteten Atrium finden Sie großzügig gestaltete Meetingpoints mit eingerichtete Kaffeeküchen – ideal für kreative Meetings und entspannte Pausen!

    Günstige Nebenkosten: Dank eines optimierten Facility Managements und kluger Verhandlungen mit Energieversorgern für Strom und Gas profitieren Sie von äußerst günstigen Nebenkosten. So bleibt mehr Budget für Ihr Kerngeschäft!

    Perfekte Anbindung: Profitieren Sie von der optimalen Sicht-/ und Verkehrslage in einem Kreuzungsbereich mit nahegelegenem Zugang zur A1, A45 und A46. Ihre Kunden und Mitarbeiter werden die Erreichbarkeit zu schätzen wissen!

    Parkmöglichkeiten: Ca. 50 Parkplätzen direkt am Gebäude, tlw. auch überdacht oder eingezäunt, sehr günstiger Mietpreis – eine Seltenheit in dieser Lage!

    Legen Sie den Grundstein für den Erfolg Ihres Unternehmens in einer hervorragenden Lage von Hagen. Kontaktieren Sie uns noch heute für weitere Informationen oder einen Besichtigungstermin!
  • Flächen

    • Nutzfläche: 1.970 m²
    • Lagerfläche: 90 m²
    • Bürofläche: 1.885 m²
    • Gesamtfläche: 1.970 m²
    • Teilbar ab: 705 m²
    • Zimmer insgesamt: 30
    • Etagen: 2
    • Stellplatzart: Freiplatz
    • Außenstellplätze: 50

    Zustand & Erschließung

    • Baujahr: 1992
    • Zustand: renoviert
    • Letzte Modernisierung: 2016

    Sonstiges

    Energieausweis: Verbrauchsausweis gültig von: 28.01.2021
    Endenergieverbrauch Wärme: 76 kWh/(m²a) Endenergieverbrauch Strom: 59 kWh/(m²a) Wesentliche Energieträger Heizung: Befeuerung Gas
    Baujahr: 1982
    • Immobilie ist verfügbar ab: 30.04.2026
  • Lage: Sehr gute Sichtlage, Lennetal Hagen, direkt im Kreuzungsbereich
    Fassade: Glattputz und Betonsteinfassade, Sockel 2021 neu gestrichen.
    Büroetage: Erdgeschoss, stufenloser Zugang, Umbau und Modernisierung ab 2010
    Anzahl Büros: Gesamt 25, jeweils für ca. 2- 8 Mitarbeiter nutzbar
    Sonstige Fläche: Lager im EG, Archiv sowie 1- 2 Serverräume (teilw. optional)
    Fenster: Aluminium mit Iso-Verglasung und teilweise mit elektrischen Außenjalousien nach Süden und Westen
    Zugang: Zugang über Schiebetürautomatik im Erdgeschoss zur linken Büroetage ca. 1200 m², Nebentür oder AUFZUG am 2. Treppenhaus zur rechten Büroetage ca. 705 m²
    Eingangslobby: Sehr gepflegt, mit strapazierfähigem Boden (ca. 2015 erneuert)
    Schließanlage: Transponderschließsystem mit Zugangsprogrammierung und Tastatur PIN und Transponder
    Sanitäranlagen: Getrennte Damen-/ Herren WCs, zeitgemäß ausgestattet. Ein Kunden WC, sowie ein separater Duschbereich vorhanden
    Boden: Strapazierfähiger Teppich-Filzboden
    Wandbeläge u Schränke: Glasfasertapete, weiß gestrichen, sowie praktitsche Einbauschränke in vielen Büros
    Decken: Abgehängt, mit teilw. modernen Rasterdeckenelementen, weiß.
    Beleuchtung: teilw. energiesparende LED-Rasterleuchten sowie Röhrenrasteleuchte
    Türen/ Zargen: Glastüren mit Edelstahlbeschlägen, Stahlzargen, weiß und Holztüren
    Elektroverteilung: 2010 modernisiert, Anschlüsse über Brüstungskanal und Bodentanks
    EDV: 2010 modernisiert, Kat- Verkabelung
    Internetgeschw.: Glasfaser liegt im Gebäude
    Brandmelder: Brandmeldeanlage, 2019 modernisiert
    Heizungsart: Gaszentralheizung mit moderner Regeltechnik, Baujahr 2022
    Klimaanlage: Moderne Deckenklimaanlage der Fa. Daikin mit Fernbedienung und elektronischer Steuerung
    Messzähler: Ja, für Wärme und Wasser
    Lager / Archiv: Ca. 45 m² im 1. OG. sowie optional ca. 90 m² Lager im EG mit Lastenaufzug und direktem Zugang zur Anlieferzone.
    Garage/Stellplatz: Ca. 50 Stellplätze, weitere auf Anfrage, Parkplatzbeleuchtung mit LED
    Werbeträger: Moderner Firmenwerbeträger in der Einfahrt, erst 2019 erstellt sowie Folierung der Fensterflächen möglich
    Mieteinheiten: Derzeit 6 Mieteinheiten.

    • Art der Ausstattung: gehoben
    • Heizungsart: Zentralheizung
    • Befeuerung: Gas
    • Bodenbelag: Teppich
    • barrierefrei
    • DV-Verkabelung
    • Klimaanlage
    • Rollläden
    • Energieausweis-Art: Verbrauch
    • Energieausweis gültig bis: 28.01.2031
    • Stromverbrauchskennwert: 59 kWh/(m²*a)
    • Heizenergieverbrauchskennwert: 76 kWh/(m²*a)
    • Baujahr (Energieausweis): 1982
    • Energieausweis-Ausstellungsdatum: 28.01.2021
    • Energieausweis-Jahrgang: ab Mai 2014
    • Energieausweis-Gebäudeart: Nichtwohngebäude
    • Primärenergieträger: Gas
    Energieausweis nicht verfügbar/erforderlich oder in Vorbereitung
    A+
    A
    B
    C
    D
    E
    F
    G
    H
  • Industriegebiet Hagen Nord Industriegebiet-Lennetal

    Das rund 190.000 Einwohner zählende Oberzentrum des Märkischen Raumes, liegt verkehrsgeographisch an zentraler Stelle in Deutschland und Europa und ist ein beliebter Standort für Unternehmensneuansiedlungen.
    Die Struktur der Hagener Wirtschaft ruht auf einem breiten mittelständischen Fundament. Unternehmen des Maschinenbaus, der Kalt- und Warmwalztechnik, der Elektronik, Elektrotechnik, Automobilzulieferer, Speditionen und Logistikunternehmen stehen neben internationalen Konzernen, wie z. B. Hoesch, Pulp & Paper, Funke Medien und die CD Wälzholz.
    Zwei Bushaltestellen (Buslinie 515, 521, 524) befinden sich fußläufig in etwa 1-2 min. und sind mit der Hagener Innenstadt direkt verbunden. Da sich das Bürohaus unmittelbar an der Kreuzung befindet, ist die Sichtlage ausgezeichnet.
    Von diesem Bürostandort erreichen Sie die Autobahnen A45, A1 und die A46 in etwa 5- 7 Autominuten oder in ca. 4 – 6 km.
    Eine Tankstelle befindet sich auf der Kreuzungsecke.

    • monatl. Betriebs-/Nebenkosten: 2.700 €
    • monatl. Heizkosten: 1.600 €
    • Heizkosten in Warmmiete enthalten: ja
    • Mieterprovision: Provisionsfrei
    • Außenstellplatzmiete: 20 €

Ihre Ansprechpartner

0211-3026520
     
Sicher!