Ca. 310 m² Club/Discothek in der Dortmunder - City zu vermieten!
-
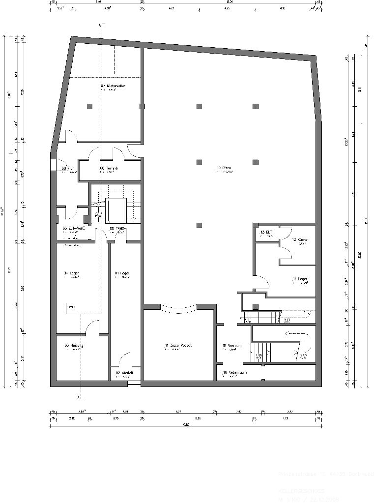
Ca. 310,00 m² UG, Club / Discothek mit Zugang von der Prinzenstraße, Gasträume
Miete: EUR 2.400,00 zzgl. EUR 1.400,00 Nebenkosten und zzgl. MwSt. mtl.
Alle Preise verstehen sich zzgl. MwSt. -
Flächen
- Nutzfläche: 310 m²
- Verkaufsfläche: 310 m²
- Gesamtfläche: 310 m²
- Stellplatzart: Freiplatz
- Außenstellplätze: 1
Zustand & Erschließung
- Zustand: gepflegt
Sonstiges
- Immobilie ist verfügbar ab: nach Vereinbarung
-
Garderobe, D + H WC Anlage, klimatisiert, Rauchmeldeanlage, vorhandene Einrichtung kann evtl. übernommen werden. Ca. 2014 modernisiert (fast 50 Jahre als Tanzlokal Ball der einsamen Herzen bekannt), Konzession für 199 Gäste vorhanden.
- Art der Ausstattung: gehoben
- Heizungsart: Fernheizung
- Befeuerung: Fernwärme
-
- Energieausweis-Art: Bedarf
- Energieausweis gültig bis: 23.06.2031
- Stromverbrauchskennwert: 40 kWh/(m²*a)
- Heizenergieverbrauchskennwert: 288 kWh/(m²*a)
- Baujahr (Energieausweis): 1964
- Energieausweis-Jahrgang: ab Mai 2014
- Energieausweis-Gebäudeart: Nichtwohngebäude
- Primärenergieträger: Fernwärme
-
Das Objekt befindet sich in der City von Dortmund, innerhalb des Walls, in unmittelbarer Nähe des Westenhellweg, direkt gegenüber das Rathaus der Stadt Dortmund, direkter Zugang zum Parkhaus, U-Bahn Station Stadtgarten.
-
- Kaltmiete: 2.400 €
- monatl. Betriebs-/Nebenkosten: 1.400 €
- Kaution: 7.200 €
- Preise zuzüglich Mehrwertsteuer: ja
- Mieterprovision:
- Außenstellplatzmiete: 55 €
















