Büro- / Praxisetage in zentraler Lage von Werl zu vermieten
-
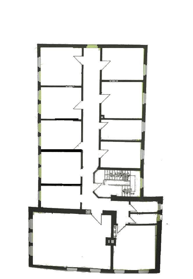
Die Büro- / Praxisetage befindet sich im 1. Obergeschoss des Hauses. Im Erdgeschoss befindet sich eine Orthopädie Praxis und im Untergeschoss eine Physiotherapie Praxis. Die Büro-/ Praxisetage teilt sich auf in 7 Behandlungsräumen, Küche, 2x WC und Wartezimmer.
-
Flächen
- Nutzfläche: 215 m²
- Bürofläche: 197 m²
- Gesamtfläche: 215 m²
- Zimmer insgesamt: 11
- Etagen: 2
- Etage: 1
Zustand & Erschließung
- Baujahr: 1887
- Zustand: gepflegt
Sonstiges
Wir bitten sich bei Interesse mit einer s c h r i f t l i c h e n Anfrage über unsere Homepage oder das Internetportal an uns zu wenden. Wir senden Ihnen dann umgehend ein Exposé per Email zu. Darin enthalten sind die Anschrift der Immobilie und die Möglichkeit, die Immobilie bereits virtuell mit einem 360-Grad-Rundgang zu besichtigen. Wir bitten Sie, sich anhand dieser Möglichkeit einen ersten Eindruck zu verschaffen. Bei näherem Interesse zeigen wir Ihnen die Immobilie gerne bei einer persönlichen Besichtigung.- Immobilie ist verfügbar ab: nach Vereinbarung
-
- Heizungsart: Zentralheizung
- Befeuerung: Gas
-
- Energieausweis-Art: Verbrauch
- Energieausweis gültig bis: 19.12.2033
- Energieverbrauchskennwert: 120,20 kWh/(m²*a)
- Energieeffizienzklasse: D
- Baujahr (Energieausweis): 1887
- Energieausweis-Ausstellungsdatum: 20.12.2023
- Energieausweis-Jahrgang: ab Mai 2014
- Energieausweis-Gebäudeart: Nichtwohngebäude
- Primärenergieträger: Gas
-
Die Büro-/ Praxistage liegt in zentraler und verkehrsgünstiger Innenstadtlage von Werl. Einkaufsmöglichkeiten, die Werler Fußgängerzone Schulen und ein Kindergarten befinden sich in unmittelbarer Nähe. Mit dem Auto erreichen Sie in wenigen Fahrminuten die A445 Richtung Arnsberg sowie sie A44 Richtung Dortmund bzw. Kassel.
-
- Kaltmiete: 1.290 €
- monatl. Betriebs-/Nebenkosten: 500 €
- Kaution: 2.580 €
- Mieterprovision: 2.38 MM
Grundrisse


