Bieterverfahren am 08.03.2026!!! - Traumhaftes Einfamilienhaus mit idyllischem Garten in Lohmar
-
Wie gefällt Ihnen der Gedanke, eine Immobilie im Rahmen eines Bieterverfahrens zu erwerben?
So funktioniert es:
Das Bieterverfahren ist keine Versteigerung, auch wenn es auf den ersten Blick ähnlich wirken mag. Der entscheidende Unterschied: Bei einer Versteigerung erhält der Höchstbietende automatisch den Zuschlag. Beim Bieterverfahren hingegen wird nach Ablauf der Frist das höchste Gebot ermittelt. Der Verkäufer entscheidet anschließend, ob er dieses annimmt.
Ablauf:
Im Anschluss an die offene Besichtigung am 08.03.2026 haben alle Interessenten die Möglichkeit, ein schriftliches Gebot abzugeben. Die Gebotsfrist endet am 13.03.2026.
Dieses besondere Einfamilienhaus überzeugt durch eine solide Bauweise, eine klare Grundrissgestaltung und einen gepflegten Garten, der den Außenbereich zu einem besonderen Highlight macht. Bereits beim Eintreten empfängt Sie ein großzügiger Eingangsbereich, von dem aus die offene Wohnküche erreichbar ist. Sie bietet ausreichend Platz für gemeinsames Kochen und fügt sich harmonisch in den angrenzenden Wohn- und Essbereich ein. Dieser besticht durch seine großzügige Gestaltung, einen Kamin sowie den direkten Zugang zur Terrasse.
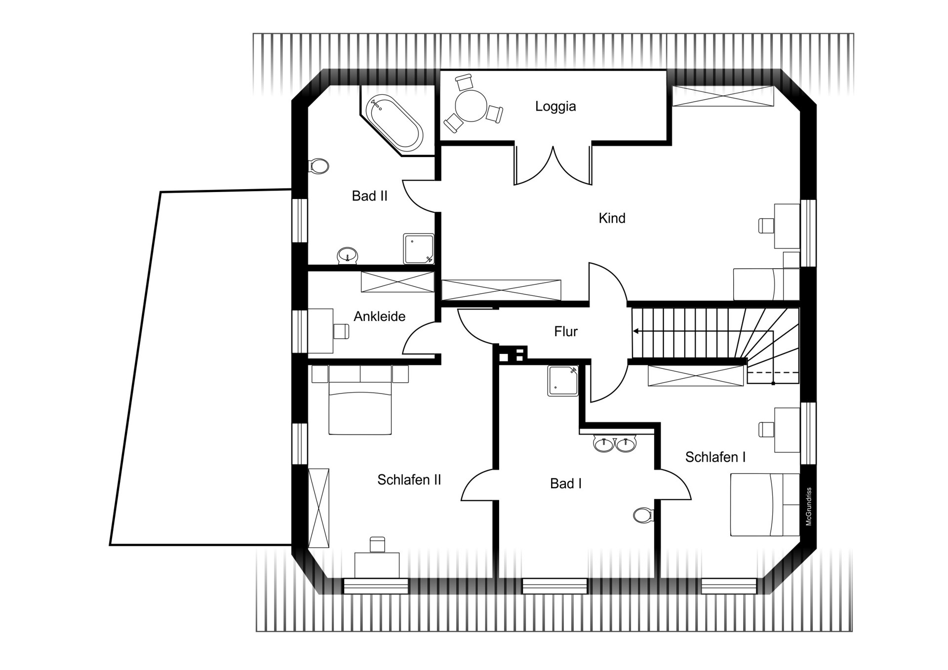
Im Obergeschoss stehen drei Schlafzimmer zur Verfügung, die jeweils über einen eigenen Zugang zu einem Badezimmer verfügen. Ein seltener Komfort, der den Wohnwert deutlich erhöht. Zusätzlich ist ein Ankleidezimmer vorhanden, das an eines der Schlafzimmer anschließt.
Der Außenbereich wurde mit viel Liebe gestaltet und bietet verschiedene Möglichkeiten zur Nutzung und Erholung. Ein Gartenhaus mit Kamin und eigener Terrasse eignet sich ideal für gemütliche Stunden im Freien. Abgerundet wird das Angebot durch einen Holzbackofen, der den Garten zusätzlich aufwertet. Ein idyllischer Teich mit Koi-Karpfen unterstreicht die Exklusivität dieses Anwesens.
Bestimmte Aufnahmen wurden mittels KI neu gestaltet, indem die Möblierung verändert oder eine modernisierte Optik erzeugt wurde. -
Flächen
- Wohnfläche: 237 m²
- Grundstücksfläche: 783 m²
- Nutzfläche: 127 m²
- Zimmer insgesamt: 4
- Schlafzimmer: 3
- Badezimmer: 2
- Separate WCs: 2
- Etagen: 2
- Außenstellplätze: 2
- Garagenstellplätze: 1
- Balkone: 2
- Terrassen: 1
Zustand & Erschließung
- Baujahr: 2001
- Zustand: gepflegt
- Keller: voll unterkellert
Sonstiges
- Immobilie ist verfügbar ab: nach Vereinbarung
- Haustiere erlaubt: ja
-
– Stilvoller Kamin im Wohnzimmer sowie ein weiterer Kamin im Gartenhaus
– Fußbodenheizung im gesamten Erdgeschoss
– Hochwertige Einbauküche mit modernen Geräten
– Liebevoll angelegter Koi-Teich
– Zwei großzügige Terrassen für unterschiedliche Sonnenlagen
– Balkon und Loggia im Obergeschoss mit schönem Ausblick
– Geräumiger Keller mit vielseitigen Nutzungsmöglichkeiten
– Separates Ankleidezimmer im Obergeschoss
– Garage sowie zwei zusätzliche Außenstellplätze
– Elektrische Markise zur Beschattung der Hauptterrasse
– Hochwertige Vogelvoliere im Gartenbereich
– Gartenhaus in Wohnqualität mit Kamin und Terrasse
– Freistehender, gemauerter Holzbackofen für besondere Kochmomente- Art der Ausstattung: gehoben
- Heizungsart: Zentralheizung, Fußbodenheizung
- Befeuerung: Gas
-
- Energieausweis-Art: Bedarf
- Energieausweis gültig bis: 17.05.2035
- Endenergiebedarf: 89,96 kWh/(m²*a)
- Energieeffizienzklasse: C
- Baujahr (Energieausweis): 2001
- Energieausweis-Jahrgang: ab Mai 2014
- Energieausweis-Gebäudeart: Wohngebäude
- Primärenergieträger: Gas
-
Die Immobilie befindet sich in attraktiver Wohnlage in 53797 Lohmar – einer gefragten Stadt im Rhein-Sieg-Kreis zwischen Köln und Bonn. Das Wohngebiet zeichnet sich durch seine ruhige, familienfreundliche Umgebung sowie die naturnahe Lage mit hohem Freizeitwert aus.
In unmittelbarer Nähe laden Wälder und Felder zu ausgedehnten Spaziergängen, Radtouren oder Joggingrunden ein. Gleichzeitig profitieren Sie von einer sehr guten Anbindung an das überregionale Verkehrsnetz: Die Autobahn A3 ist in wenigen Minuten erreichbar und bietet schnelle Verbindungen nach Köln (ca. 20–25 Minuten) und Bonn (ca. 30 Minuten). Auch der öffentliche Nahverkehr ist mit Buslinien und einem nahegelegenen Bahnhof gut erschlossen.
Einkaufsmöglichkeiten für den täglichen Bedarf, Kindergärten, Schulen sowie Ärzte und Apotheken befinden sich in der näheren Umgebung und unterstreichen die hohe Lebensqualität des Standorts. Das Stadtzentrum von Lohmar ist nur wenige Fahrminuten entfernt und bietet eine gute Infrastruktur mit vielfältigen Angeboten.
-
- Käuferprovision: 3,57 % inkl. MwSt.
Grundrisse























































