Kapitalanlage > Mehrfamilienhaus
Zu Verkaufen

Attraktives Mehrfamilienhaus mit Abgeschlossenheitsbescheinigung in Toplage von Hennef

53773 Hennef
1.345.000 €

66275-8318
1957
445 m²
729 m²
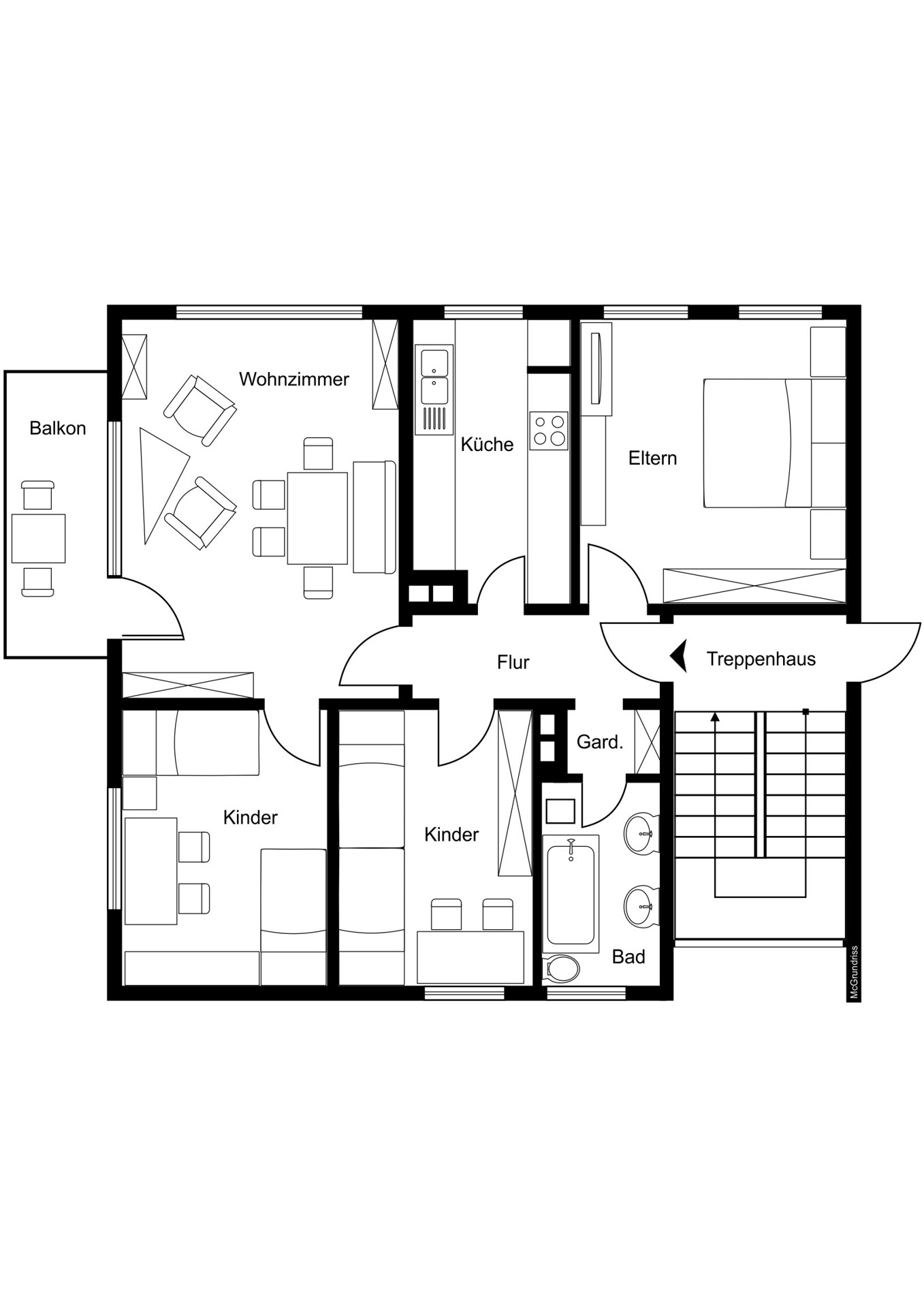
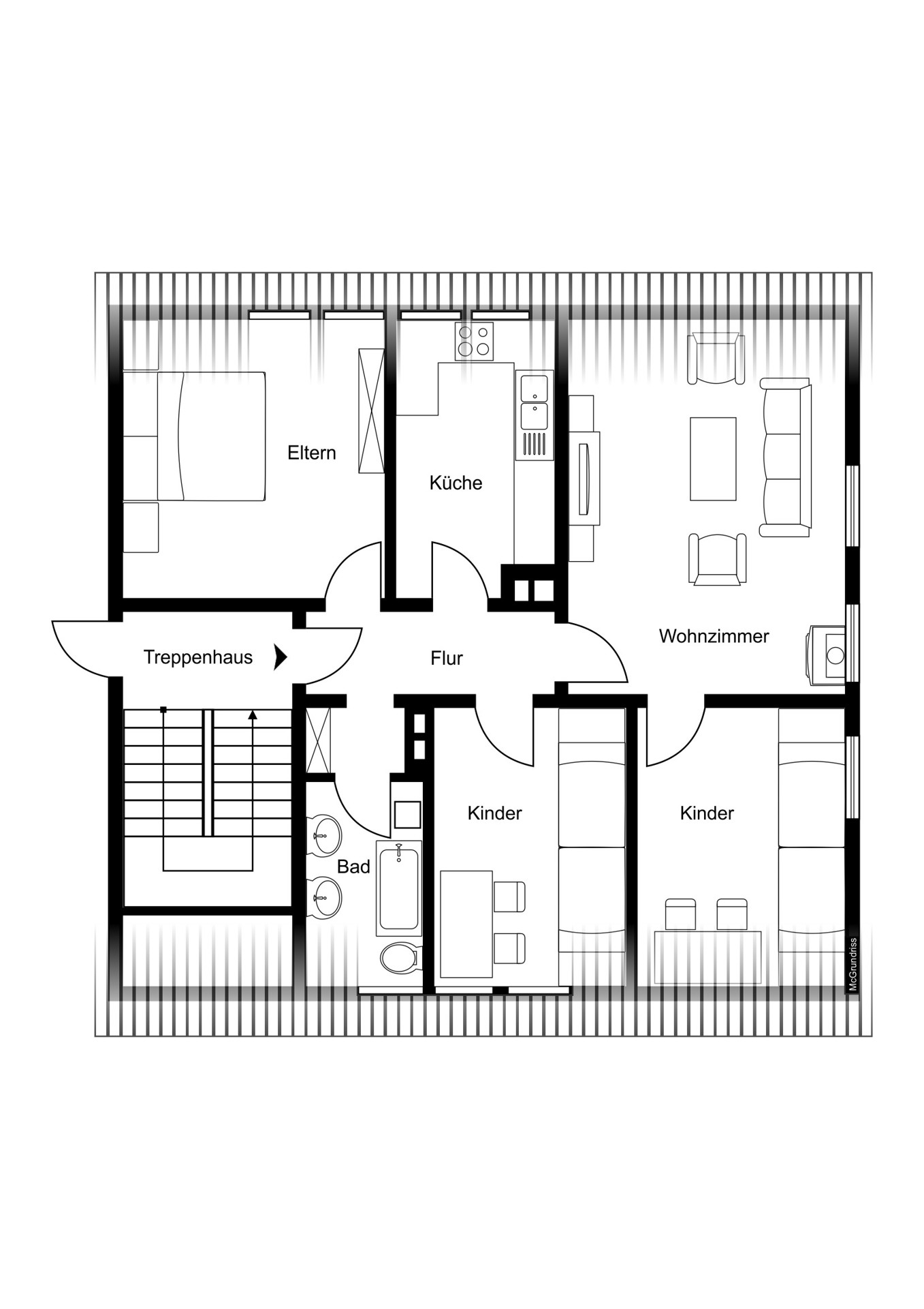
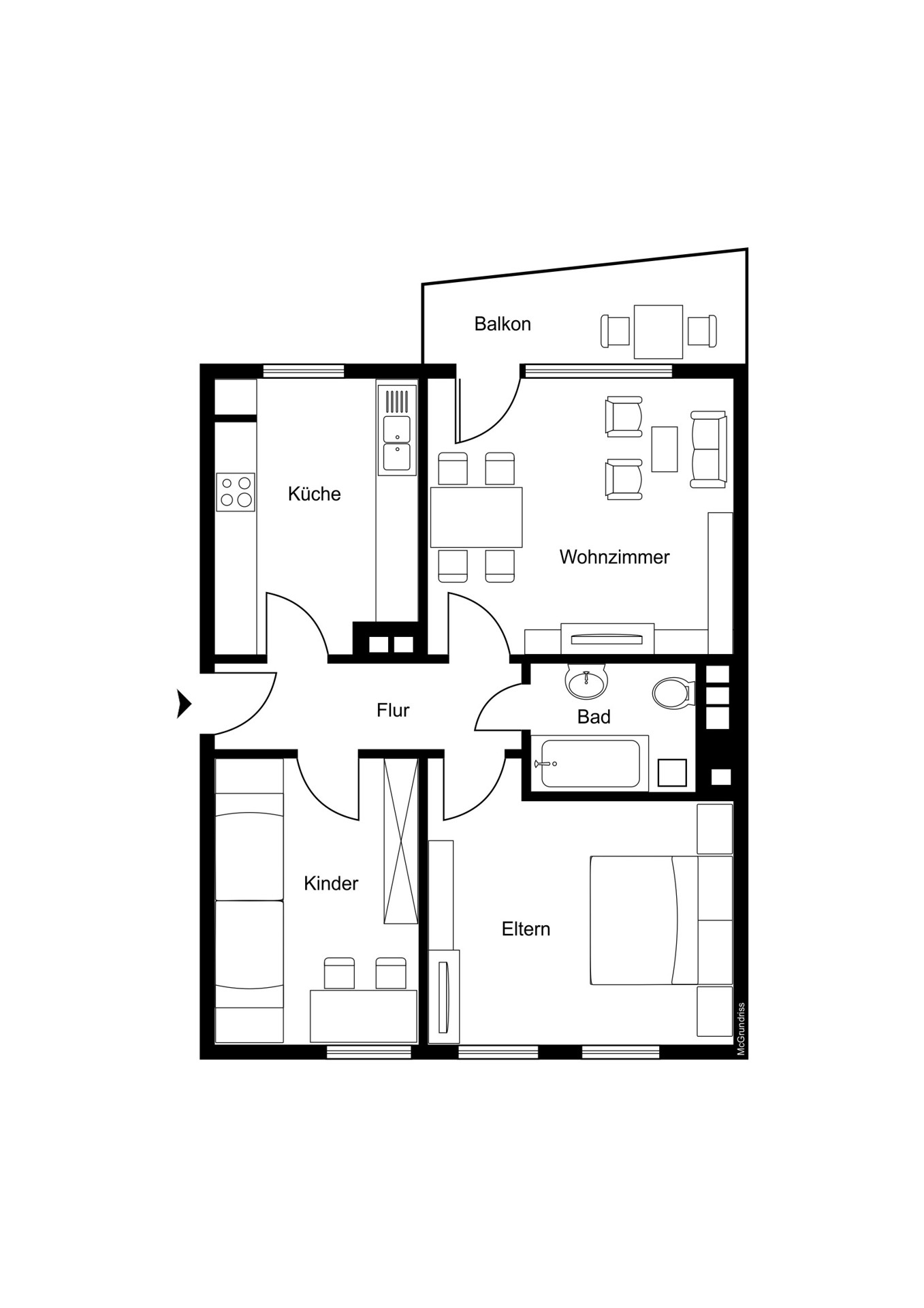
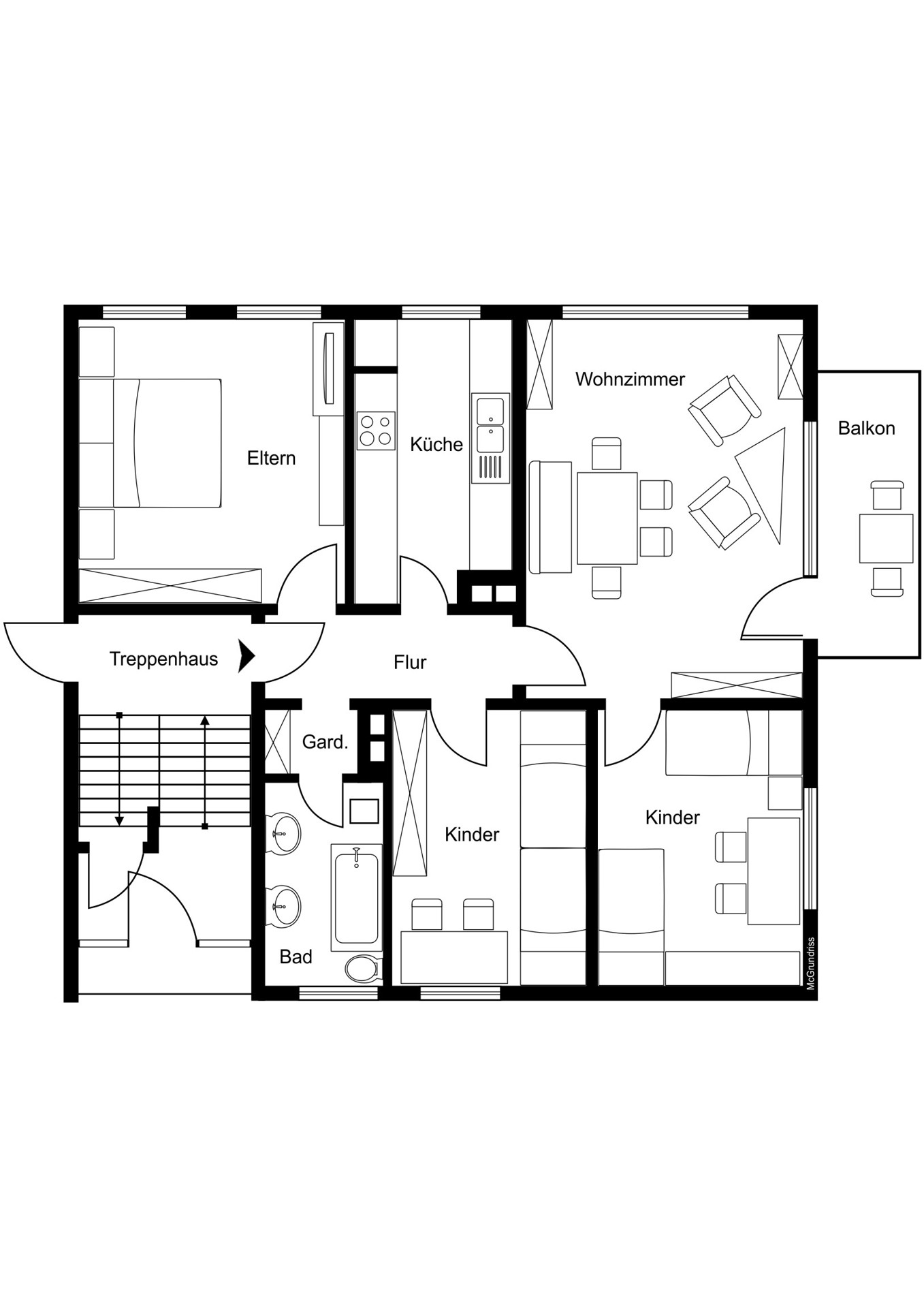
  • Das gepflegte Mehrfamilienhaus in der Siegallee 20 wurde im Jahr 1958 erbaut und befindet sich in einer gefragten, gut angebundenen Wohnlage von Hennef – direkt an der Sieg. Die Immobilie verfügt über eine Gesamtwohnfläche von ca. 445 m², die sich auf sechs großzügige 3- bis 4-Zimmer-Wohnungen verteilt. Aufgrund der attraktiven Lage, der soliden Mieterstruktur und der stabilen Einnahmen stellt das Objekt eine interessante Investitionsmöglichkeit für Kapitalanleger oder Projektentwickler dar.

    Die Wohnungen variieren in ihrer Größe zwischen ca. 63 m² und ca. 83 m². Die derzeitigen Mieteinnahmen spiegeln ein stabiles Niveau wider und lassen gleichzeitig Potenzial für zukünftige Wertsteigerungen durch Mietanpassungen erkennen. So beträgt die durchschnittliche monatliche Kaltmiete aktuell ca. 10,30 € pro Quadratmeter.

    Im Einzelnen setzt sich die Vermietung wie folgt zusammen:

    Wohnung 1 (3 Zimmer, ca. 70,79 m²) ist seit 2004 vermietet und erzielt eine monatliche Kaltmiete von 617,79 € (8,73 €/m²).

    Wohnung 2 (4 Zimmer, ca. 82,92 m²) ist seit 2023 vermietet, die Kaltmiete beträgt 854,16 € (10,30 €/m²).

    Wohnung 3 (3 Zimmer, ca. 70,79 m²) ist seit 2021 vermietet und erwirtschaftet 828,07 € monatlich (11,70 €/m²).

    Wohnung 4 (4 Zimmer, ca. 82,92 m²) ist seit 2020 vermietet, hier beträgt die Kaltmiete 877,66 € (10,58 €/m²).

    Wohnung 5 (3 Zimmer, ca. 63,31 m²) ist bereits seit 2001 vermietet, die monatliche Miete liegt bei 533,49 € (8,43 €/m²).

    Wohnung 6 (4 Zimmer, ca. 74,25 m²) wird seit 2019 bewohnt und erzielt eine Kaltmiete von 874,13 € (11,77 €/m²).

    Zusätzlich sind zwei Stellplätze separat für jeweils 75,00 € pro Monat vermietet, was weitere Einnahmen von 150,00 € monatlich generiert.

    Insgesamt belaufen sich die monatlichen Kaltmieteinnahmen für das Objekt auf 4.735,30 €, zuzüglich der Einnahmen aus den Stellplätzen. Die solide Mietrendite und das Entwicklungspotenzial durch Mietanpassungen bei zukünftigen Neuvermietungen machen diese Immobilie zu einer attraktiven Kapitalanlage in bester Lage von Hennef.
  • Flächen

    • Wohnfläche: 445 m²
    • Grundstücksfläche: 729 m²
    • Vermietbare Fläche: 445 m²
    • Wohneinheiten: 6
    • Etagen: 3
    • Stellplätze: 5
    • Außenstellplätze: 2
    • Garagenstellplätze: 3

    Zustand & Erschließung

    • Baujahr: 1957
    • Zustand: gepflegt
    • Keller: voll unterkellert

    Sonstiges

    • Immobilie ist verfügbar ab: nach Vereinbarung
  • – Moderne Heizungsanlage

    – Wohnung (Mitte links) wurde komplett saniert

    – Gemeinschaftliche Waschküche

    – Gartenmitbenutzung für Erdgeschosswohnungen

    – Drei Garagen aus 2004

    • Art der Ausstattung: Standard
    • Befeuerung: Gas
    • Energieausweis-Art: Bedarf
    • Energieausweis gültig bis: 17.11.2030
    • Endenergiebedarf: 128,00 kWh/(m²*a)
    • Energieeffizienzklasse: D
    • Baujahr (Energieausweis): 1957
    • Energieausweis-Jahrgang: ab Mai 2014
    • Energieausweis-Gebäudeart: Wohngebäude
    • Primärenergieträger: Gas
    A+
    A
    B
    C
    D
    128,00 kWh/(m²·a)
    E
    F
    G
    H
  • Die Immobilie befindet sich in bester Lage von Hennef (Sieg), direkt an der begehrten Siegallee – einer ruhigen und gleichzeitig zentralen Wohnstraße mit viel Grün und direkter Nähe zur Sieg. Die Umgebung ist geprägt von gepflegten Wohnhäusern, altem Baumbestand und einer angenehmen, familienfreundlichen Atmosphäre.

    Das Zentrum von Hennef ist fußläufig in wenigen Minuten erreichbar. Hier finden sich vielfältige Einkaufsmöglichkeiten, Cafés, Restaurants, Ärzte, Apotheken sowie kulturelle und sportliche Angebote. Schulen und Kindergärten befinden sich ebenfalls in komfortabler Nähe.

    Die Anbindung an den öffentlichen Nahverkehr ist exzellent: Der Bahnhof Hennef (Sieg) liegt nur wenige Gehminuten entfernt und bietet regelmäßige Zugverbindungen nach Bonn, Siegburg und Köln. Auch die Autobahnen A3 und A560 sind schnell erreichbar und ermöglichen eine zügige Anbindung an die umliegenden Städte und den Flughafen Köln/Bonn.

    Besonders hervorzuheben ist die direkte Nähe zur Sieg und zu den umliegenden Grünflächen, die zu ausgedehnten Spaziergängen, Joggingrunden oder Fahrradtouren einladen – ein idealer Standort für Menschen, die urbanes Leben und naturnahe Erholung verbinden möchten.

    • Kaufpreis: 1.345.000 €
    • Käuferprovision: 4,76 % inkl. MwSt
    • X-fache (Kaufpreis bez. auf Jahresmiete): 23.04
    • Aktuelle Mieteinnahmen pro Jahr: 58.371,60 €

Ihre Ansprechpartner

0211-3026520
     
Sicher!