1- bis 3-Familienhaus mit herrlichem Ausblick, großzügigem Grundstück und separaten Wohneinheiten

-
Dieses gepflegte und äußerst flexibel nutzbare Ein- bis Dreifamilienhaus aus dem Jahr 1982 bietet vielfältige Wohnmöglichkeiten auf rund 204 m² Wohnfläche sowie ca. 31 m² zusätzlicher Nutzfläche. Ob als großzügiges Einfamilienhaus mit Einliegerwohnungen oder Mehrgenerationenhaus – hier stehen Ihnen alle Optionen offen. Das Haus befindet sich auf einem großzügigen Grundstück von ca. 671 m² in ruhiger, angenehmer Wohnlage und begeistert durch seine durchdachte Raumaufteilung, den gepflegten Zustand und zahlreiche Highlights.
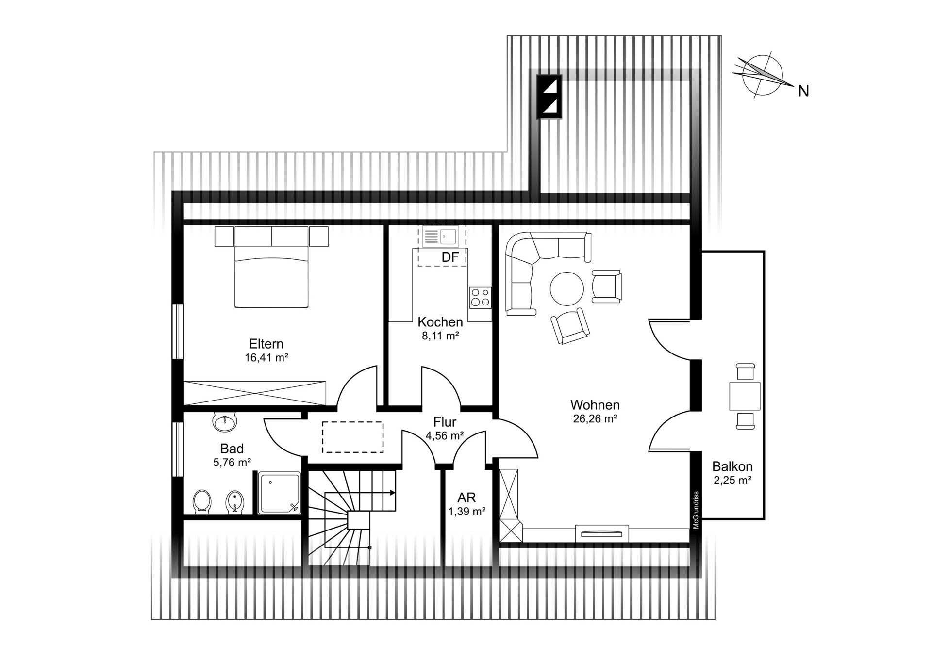
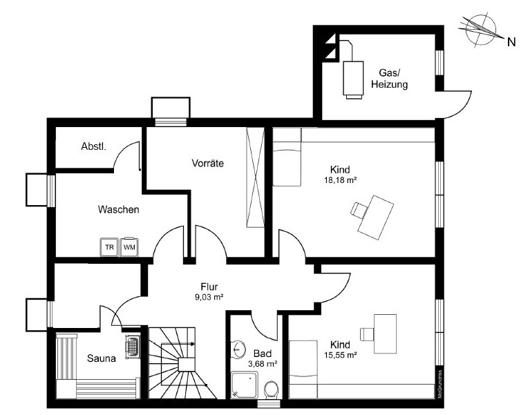
Das Haus überzeugt durch eine funktionale Raumaufteilung und hochwertige Ausstattung über drei Ebenen. Im Dachgeschoss befindet sich eine separate 2-Zimmer-Wohnung mit eigenem Zugang und einem Balkon, der einen traumhaften Ausblick bietet – ideal als Einliegerwohnung oder zur Vermietung. Das Erdgeschoss beherbergt eine großzügige 2-Zimmer-Wohnung mit weitläufiger Sonnenterrasse und eignet sich perfekt für Paare oder kleine Familien, die besonderen Wert auf Wohnkomfort und Lebensqualität legen. Im Souterrain stehen zwei weitere Zimmer, ein Badezimmer sowie Abstell- und Kellerräume zur Verfügung. Eine eigene Terrasse und eine fest eingebaute Sauna runden das Angebot ab und schaffen Raum für Entspannung und Wellness im eigenen Zuhause. Auch diese Etage lässt sich hervorragend als separate Wohneinheit oder als Gäste- bzw. Arbeitsbereich nutzen.
Der gepflegte Garten verfügt außerdem über ein großes Gartenhaus, welches mit Strom und Licht ausgestattet ist.
Die gesamte Immobilie befindet sich in einem gepflegten Gesamtzustand – kein akuter Renovierungsstau.
Ein Haus mit vielen Möglichkeiten – ob als Mehrgenerationenhaus, mit Teilvermietung oder zur alleinigen Nutzung mit viel Platz. Die ruhige Lage, die separaten Einheiten und die liebevolle Pflege machen dieses Objekt zu einem besonderen Angebot. -
Flächen
- Wohnfläche: 203,91 m²
- Grundstücksfläche: 671 m²
- Nutzfläche: 31 m²
- Zimmer insgesamt: 6
- Schlafzimmer: 4
- Badezimmer: 3
- Separate WCs: 1
- Einliegerwohnung: ja
- Stellplätze: 2
- Garagenstellplätze: 2
- Balkone: 1
- Terrassen: 2
Zustand & Erschließung
- Baujahr: 1982
- Zustand: gepflegt
- Keller: voll unterkellert
-
– Sauna
– Einliegerwohnung
– Zwei Garagen
– Fußbodenheizung
– Großzügige Sonnenterrassen
– Balkon mit tollem Weitblick
- Art der Ausstattung: Standard
- Heizungsart: Zentralheizung
- Befeuerung: Gas
-
- Energieausweis-Art: Verbrauch
- Energieausweis gültig bis: 12.07.2034
- Energieverbrauchskennwert: 105,30 kWh/(m²*a)
- Energieeffizienzklasse: D
- Baujahr (Energieausweis): 1982
- Energieausweis-Jahrgang: ab Mai 2014
- Energieausweis-Gebäudeart: Wohngebäude
- Primärenergieträger: Gas
-
Diese charmante Immobilie befindet sich in Neunkirchen-Seelscheid, einer idyllischen Gemeinde im Rhein-Sieg-Kreis im Bundesland Nordrhein-Westfalen. Diese attraktive Lage bietet eine perfekte Balance zwischen ländlichem Charme und der Nähe zu städtischen Annehmlichkeiten. Die Umgebung ist geprägt von einer grünen Landschaft, die sowohl Naturliebhabern als auch Ruhesuchenden zahlreiche Möglichkeiten zur Erholung bietet. In Neunkirchen-Seelscheid finden sich vielfältige Einkaufsmöglichkeiten, Restaurants und Cafés, die für den täglichen Bedarf und kulinarischen Genuss sorgen. Familien profitieren von einem breiten Bildungsangebot mit Schulen und Kindergärten in der Nähe. Die gute Verkehrsanbindung ermöglicht eine schnelle Erreichbarkeit der umliegenden Städte und macht den Ort besonders attraktiv für Pendler. Hier erleben Sie eine hohe Lebensqualität in einer freundlichen und familienorientierten Gemeinschaft.
-
- Kaufpreis: 498.000 €
- Käuferprovision: 3,57 % inkl. MwSt.
Grundrisse
